Hoppa till innehåll
Såld 18 jun 2023
Slutpris
6 400 000 kr

Frejgatan 36, Stockholm

Renoveringsobjekt i pampig fastighet

  • Typ: Bostadsrättslägenhet
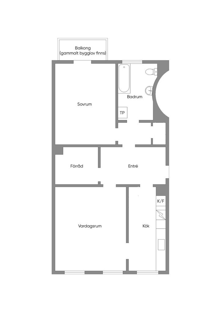
  • Rum: 2
  • Boarea: 71 m2
  • Lägenhetsnummer: 3
  • Byggnadsår: 1888
  • Månadsavgift: 2 945 kr
  • Upplåtelseform: Bostadsrätt
  • Våning: 1
  • Hiss: Nej

Planritning

Karta och område

Frejgatan 36, Stockholm

Kundernas omdömen

2025-03-13
Personlig, påläst och ödmjuk samt med en alltid proffesionell approach.
Ronald E
2024-10-10
Bra och professionellt bemötande. Bra kommunikation. Levererade över förväntan. Trevligt kontor och medarbetare.
Pia P
2024-06-09
Alexander Nilsson levde upp till alla vår förväntningar, kan varmt rekommenderas!
Lars H
2024-06-06
Påläst, erfaren , professionell
Konstantin F
2024-03-15
Bra bemötande ,trevlig och kunnig. Känndes bra från 1a mötet. Kan klart rekomenderas för framtida köp , sälj.
Svante D
2024-02-03
Jag kom in sent i budgivningen på en lägenhet som jag var intresserad av. Jag fick föredömlig service, extra visning och kunnigt bemötande. Jag kände att jag kunde lita fullt ut på Alexander och Svensk Fastighetsförmedling och lad...
Fredrik A
2023-11-23
Alexander är mycket förtroendeingivande och rådgivande i sin approach. Uppskattar att han lyssnar av och verkar i säljarens tempo. Vi är väldigt nöjda med Alexanders insats både gånger han har sålt våra lägenheter.
Camilla B
2023-10-30
Alexander made the process very smooth and I felt I was in safe hands. His experience was very reassuring in what can feel like an uncertain, or difficult market just now. I managed to get the price I was looking for and something...
Hazel Pamela M
2023-09-23
Proffsig, påläst, anträffbar, lugn och metodisk och inte minst trevlig!,
Ronald E
 
Steg 1/4 - Bostadsuppgifter
Steg 2/4 - Välj tid för mötet
Steg 3/4 - Kontaktuppgifter
Steg 4/4 - Slutför bokning
Steg 3/3 - Kontaktuppgifter

Boka tid med en mäklare för värdering

1. Fyll i dina bostadsuppgifter
2. Välj tid och mäklare i kalendern
3. Mäklaren ringer innan besöket

Boka tid med en mäklare som passar dig och din bostad

Så här går det till
1. Fyll i dina bostadsuppgifter
2. Välj tid och mäklare i kalendern
3. Mäklaren ringer innan besöket
Vi ringer dig för att boka en tid
Vi hittade inga lediga tider just nu. Fyll i dina kontaktuppgifter nedan så ringer vi upp för att boka in en passande tid.
Vi ringer dig för att en boka tid
Vi hittade inga lediga tider. Men det är inga problem, vi ringer upp för att hitta en passande tid.
Fyll i dina kontaktuppgifter
Vi behöver dem för att kunna kontakta dig inför mötet.
Fyll i dina kontaktuppgifter
Vänligen fyll i dina uppgifter nedan så ringer vi upp dig för att boka en tid.
Mäklare:
Tid:

Hur kontaktar vi dig?

Oj, något gick fel. Försök gärna igen. 

En muntlig värdering är oftast gratis, men om du bor långt bort från vårt kontor kan en mindre avgift tillkomma. I så fall stämmer mäklaren av det med dig innan.

Vi tar en avgift för en skriftlig värdering för exempelvis bolån. Prata med din mäklare för att få ytterligare information om detta.

Du förbinder dig inte till någonting när du bokar en tid.

Hämtar tider...
Ett ögonblick!
Tack, dina uppgifter är sparade!
Ditt möte är bokat!
Mäklare:
Datum:
Tid:
kl.
Adress:
Lägg till gärna till epost för att inte missa något.

Liknande objekt till salu