
Såld 22 apr 2025
Slutpris
1 900 000 kr
1,5 rok i toppskick med balkong i västerläge!
Lediga tider:
fre 17/10 och mån 20/10
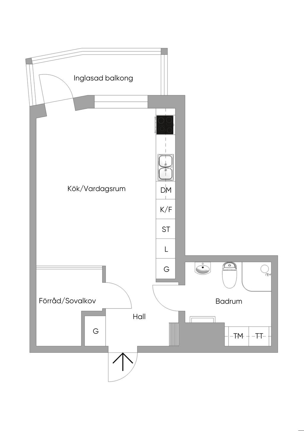
Planritning

Viss avvikelse kan förekomma. Skala och mått kan avvika från verkligheten.
Fullskärm