
Såld 01 feb 2024
Slutpris
4 400 000 kr
En bodröm med lantlig magi!
Kontakta ansvarig mäklare
Patrick Magiera
Lediga tider:
mån 20/10 och tis 21/10
Planritning

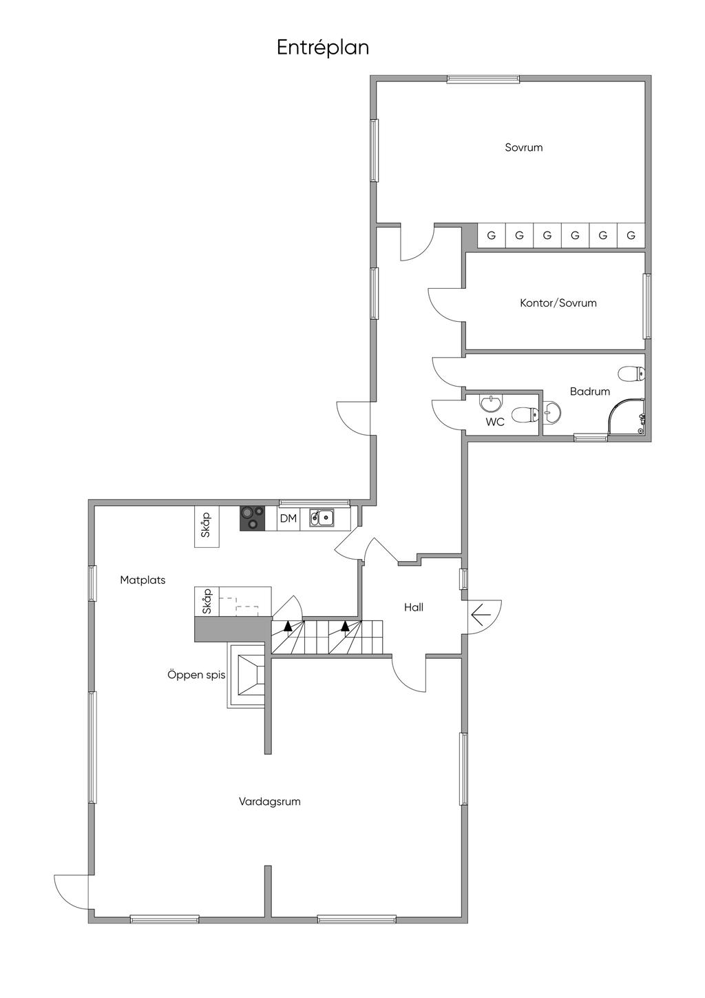
Planlösning Entréplan,
Viss avvikelse kan förekomma. Skala och mått kan avvika från verkligheten.

Planlösning Övre plan,
Viss avvikelse kan förekomma. Skala och mått kan avvika från verkligheten.

Planlösning Källarplan,
Viss avvikelse kan förekomma. Skala och mått kan avvika från verkligheten.
Karta och område
Görslövsvägen 24, Jonstorp
Trygg affär - Varudeklarerad Villa
Marknadens mest omfattande paket för besiktning och försäkring ger trygghet i 10 år*.
*Enligt marknadsbevakning 2025-04-02
Läs mer här