Hoppa till innehåll
Såld 11 aug 2023
Slutpris
4 350 000 kr

Trälåsvägen 14C, Västra Frölunda

Tillfälle! Härlig 3a med mysig uteplats och dubbla badrum i Grimmereds populära villaområde!

  • Typ: Bostadsrättslägenhet
  • Rum: 3, varav 2 sovrum
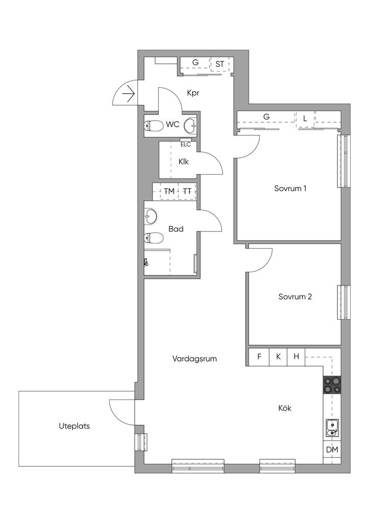
  • Boarea: 88 m2
  • Lägenhetsnummer: 31003
  • Byggnadsår: 2014
  • Månadsavgift: 4 830 kr
  • Driftkostnad: 150 kr/månad
  • Upplåtelseform: Bostadsrätt
  • Våning: 0 av 3
  • Hiss: Ja

Planritning

Karta och område

Trälåsvägen 14C, Västra Frölunda

Kundernas omdömen

2025-10-08
Mycket bra och seriös mäklare, säljer inte in orimliga förhoppningar utan kopplar pris och förväntningar till verkligheten. Rekommenderar starkt!
Hannes E
2025-10-01
Otroligt professionell och tillmötesgående.
Anders B
2025-09-29
Jag kan varmt rekommendera Victor Helgesson på Svensk Fastighetsförmedling Göteborg Väster. Från första mötet kände jag mig trygg – Victor är mycket professionell, engagerad och påläst. Han tog sig tid att förklara processen tydl...
Mahsa K
2025-09-22
Victor är rätt man på rätt plats, var rädd om honom. Mycket tillmötesgående och kunnig, vi är mycket nöjda. Mvh Ann-Marie
Willi S
2025-09-19
Proffesionell, hjälpsam och lösningsorienterad!
Gustav L
2025-09-16
Victor en en toppenmäklare, han informerar hela tiden vad som händer i processen av försäljningen. Han svarar alltid på sms och han vill alltid hjälpa till så mycket som han kan. Kan rekommendera Victor till alla.
Niklas R
2025-09-12
Victor agerar proffesionellt och söker upp svaren på frågor som uppstår. Han är snabb på att återkoppla och driver processen framåt.
Erik R
2025-06-11
En duktig och kompetent mäklare med en stor kognitiv förmåga att förstå marknaden! Tack!
Michael S
2025-06-07
Bra bemötande, allt har funkat.
Gunilla H
 
Steg 1/4 - Bostadsuppgifter
Steg 2/4 - Välj tid för mötet
Steg 3/4 - Kontaktuppgifter
Steg 4/4 - Slutför bokning
Steg 3/3 - Kontaktuppgifter

Boka tid med en mäklare för värdering

1. Fyll i dina bostadsuppgifter
2. Välj tid och mäklare i kalendern
3. Mäklaren ringer innan besöket

Boka tid med en mäklare som passar dig och din bostad

Så här går det till
1. Fyll i dina bostadsuppgifter
2. Välj tid och mäklare i kalendern
3. Mäklaren ringer innan besöket
Vi ringer dig för att boka en tid
Vi hittade inga lediga tider just nu. Fyll i dina kontaktuppgifter nedan så ringer vi upp för att boka in en passande tid.
Vi ringer dig för att en boka tid
Vi hittade inga lediga tider. Men det är inga problem, vi ringer upp för att hitta en passande tid.
Fyll i dina kontaktuppgifter
Vi behöver dem för att kunna kontakta dig inför mötet.
Fyll i dina kontaktuppgifter
Vänligen fyll i dina uppgifter nedan så ringer vi upp dig för att boka en tid.
Mäklare:
Tid:

Hur kontaktar vi dig?

Oj, något gick fel. Försök gärna igen. 

En muntlig värdering är oftast gratis, men om du bor långt bort från vårt kontor kan en mindre avgift tillkomma. I så fall stämmer mäklaren av det med dig innan.

Vi tar en avgift för en skriftlig värdering för exempelvis bolån. Prata med din mäklare för att få ytterligare information om detta.

Du förbinder dig inte till någonting när du bokar en tid.

Hämtar tider...
Ett ögonblick!
Tack, dina uppgifter är sparade!
Ditt möte är bokat!
Mäklare:
Datum:
Tid:
kl.
Adress:
Lägg till gärna till epost för att inte missa något.

Liknande objekt till salu