Såld 06 apr 2023
Slutpris
6 300 000 kr
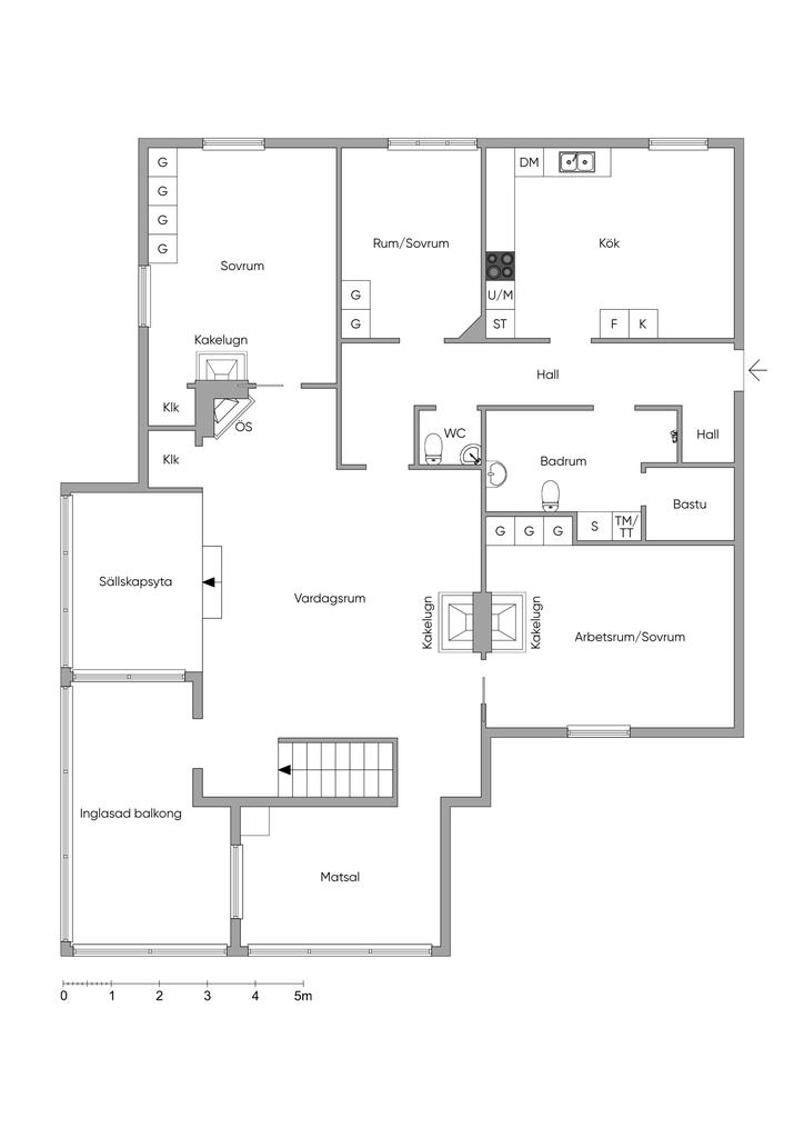
Unik sekelskiftesvåning med fyra eldstäder på strandtomt med brygga, båtplats och båthus.
Planritning

Planritningen,
Viss avvikelse kan förekomma. Skala och mått kan avvika från verkligheten.