Såld 26 jun 2023
Slutpris ej tillgängligt
-kontakta mäklaren för mer information
Villa med hörntomt och låg driftskostnad!
Lediga tider:
fre 17/10 och sön 19/10
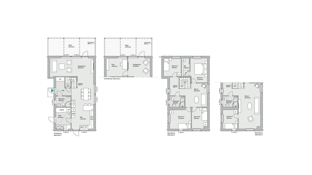
Planritning

Viss avvikelse kan förekomma. Skala och mått kan avvika från verkligheten.
Fullskärm