Såld 14 sep 2023
Lediga tider:
mån 20/10 och tis 21/10
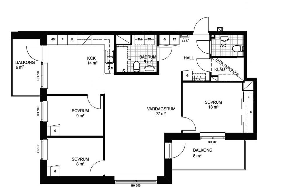
Planritning

2 D skiss,
Viss avvikelse kan förekomma. Skala och mått kan avvika från verkligheten.