Såld 11 jan 2023
Slutpris
3 100 000 kr
Nyproducerad 3a med centralt läge i Vega
Lediga tider:
mån 20/10 och tis 21/10
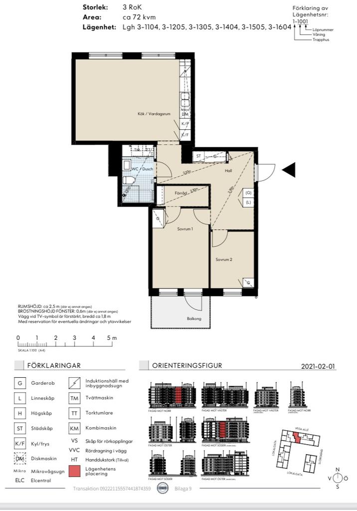
Planritning

Viss avvikelse kan förekomma. Skala och mått kan avvika från verkligheten.
Fullskärm