Såld 21 jan 2023
Slutpris
3 120 000 kr
Helt nybyggt bostadsrättsradhus med 4 sovrum och trädgårdstäppa!
Lediga tider:
fre 17/10 och mån 20/10
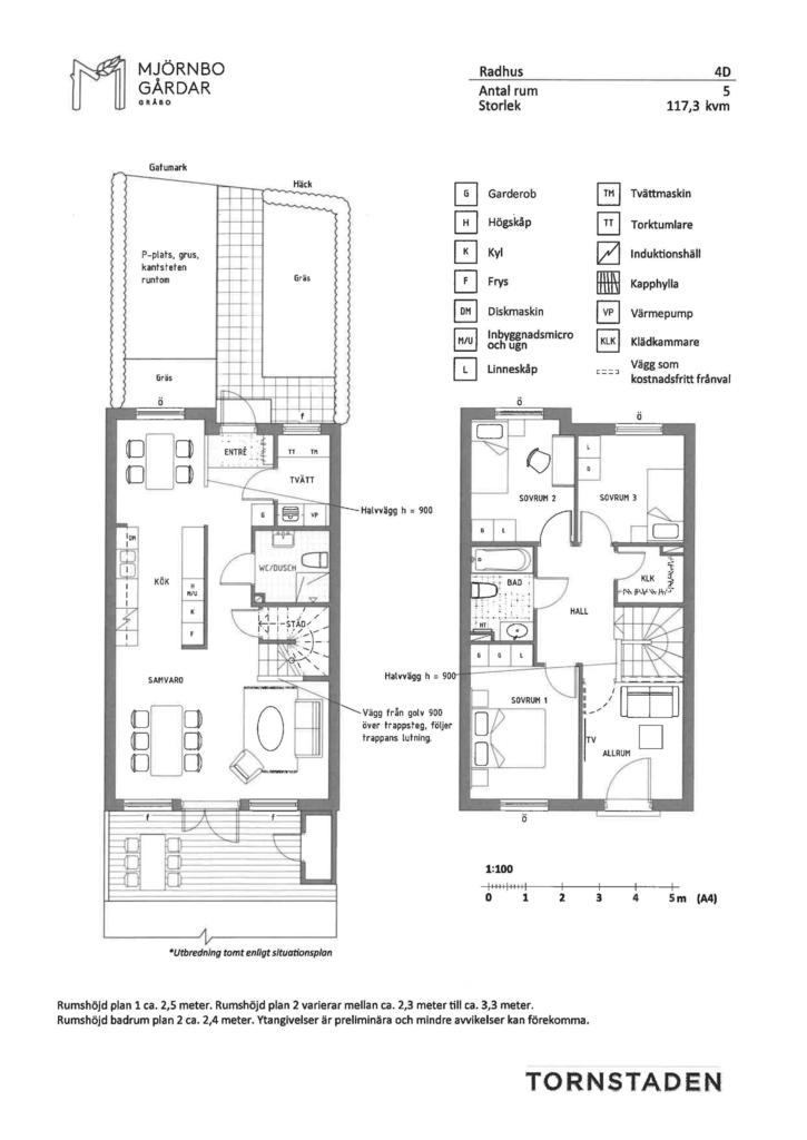
Planritning

Planlösning,
Viss avvikelse kan förekomma. Skala och mått kan avvika från verkligheten.