Såld 04 maj 2022
Slutpris
3 895 000 kr
Fantastisk villa i vackra Bergliden!
Kontakta ansvarig mäklare
Mikael Berggren
Lediga tider:
fre 17/10 och mån 20/10
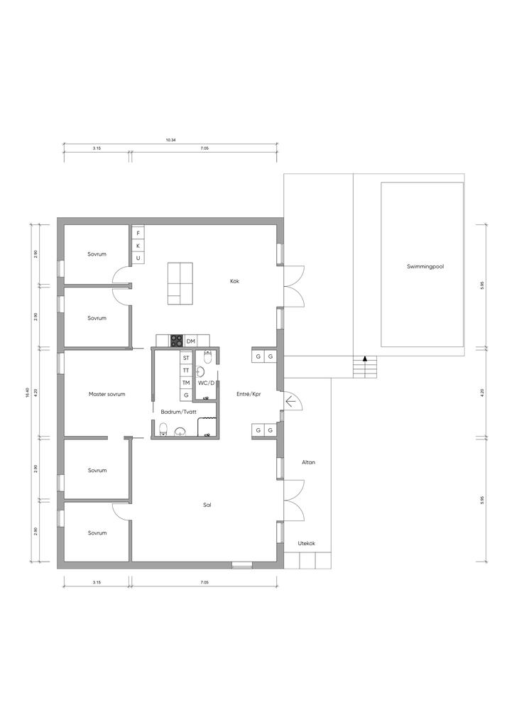
Planritning

Viss avvikelse kan förekomma. Skala och mått kan avvika från verkligheten.
FullskärmKarta och område
Bergliden 42, Skellefteå
Trygg affär - Varudeklarerad Villa
Marknadens mest omfattande paket för besiktning och försäkring ger trygghet i 10 år*.
*Enligt marknadsbevakning 2025-04-02
Läs mer här