Såld 31 okt 2021
Lediga tider:
mån 20/10 och tis 21/10
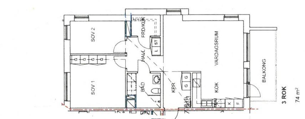
Planritning

74 kvm skiss,
Viss avvikelse kan förekomma. Skala och mått kan avvika från verkligheten.