Hoppa till innehåll
 
Utgångspris: 
6 300 000 kr
Vad kostar boendet? Räkna på din månadskostnad
Victoria Håkansson, Mäklare Svensk Fastighetsförmedling
Ansvarig mäklare
Victoria Håkansson
Franchisetagare, Fastighetsmäklare
Vad kostar boendet? Räkna på din månadskostnad
Sunne

Höglundagatan 52

Utgångspris: 
6 300 000 kr
Vad kostar boendet? Räkna på din månadskostnad
Victoria Håkansson, Mäklare Svensk Fastighetsförmedling
Ansvarig mäklare
Victoria Håkansson
Franchisetagare, Fastighetsmäklare
Vad kostar boendet? Räkna på din månadskostnad

Vacker och representativ villa i Åmbergs lugna kvarter

  • Typ: Villa, 2-plan med inredningsbar vind
  • Rum: 10, varav 2-5 sovrum
  • Boarea: 441 m2
  • Biarea: 120 m2
  • Tomtarea: 6 271 m2
  • Byggnadsår: 1972
  • Driftkostnad: 37 512 kr/år
  • Upplåtelseform: Äganderätt

Välkommen till denna enastående och tidlösa villa i charmig äldre stil – ett riktigt drömhem för den som söker elegans, historia och en perfekt blandning av komfort och karaktär. Denna imponerande villa på ca 441 kvm erbjuder 10 rymliga rum, där varje detalj är omsorgsfullt bevarad och välskött för att skapa en unik atmosfär av hemkänsla och stil.

Villan pryds av ett klassiskt skiffertak och många av de ursprungliga, vackra detaljerna har bevarats – från charmiga brädtak till gedigna trägolv och vackra fönsterpartier som släpper in ett mjukt, naturligt ljus. Den generösa planlösningen ger plats för både familjeliv, avkoppling och festligheter.

Nedre plan är en riktig dröm för den som uppskattar stil och funktion. Här möts du av en stor, elegant huvudentré som välkomnar gäster och familj. I den öppna, luftiga salongen finns gott om plats för större sällskap och festliga tillställningar, medan det stora köket inbjuder till att tillreda fina middagar. Här finns gott om arbetsytor samt ett närliggande skafferi för förvaring – perfekt för den matlagningsälskande. Dessutom finns ett mysigt sällskapsrum där man kan koppla av och umgås, samt ett duschrum med bastu för att njuta av avkopplande stunder efter en aktiv dag. En praktisk tvättstuga underlättar vardagens sysslor och gör hemmet ännu mer funktionellt.

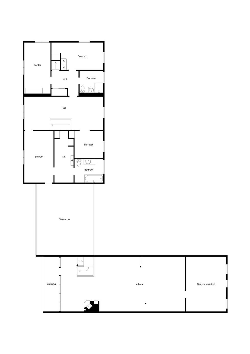
På övre plan möts man av en rymlig, möblerbar hall som fungerar som en social samlingsplats. Här finns en lyxig master bedroom med egen walk-in closet och ett privat badrum, utgång till den stora terrassen – perfekt för morgonkaffe eller sommarens grillkvällar. Dessutom finns ytterligare ett sovrum, ett kontor samt ett bibliotek för den litteraturintresserade. Här finns också ett stort, nyrenoverat duschrum som ger extra bekvämlighet.

På övre plan, i den vinkelbyggda delen av huset, finns ett stort allrum som kan användas för riktigt stora sällskap, eller varför inte som en kreativ ateljé för den som behöver generösa utrymmen för sitt skapande. Här finns även ett stort utrymme som idag används som snickarverkstad, men som kan bli en del av ateljén eller förvandlas till ett extra sovrum – perfekt för den som vill ha flexibla lösningar i hemmet.

Denna vackra villa kombinerar det bästa av gammaldags charm och modern funktionalitet – ett hem att älska i generationer.
Villan har en stor, insynsskyddad parkliknande tomt på 6 271 kvm, en grön oas för lek, trädgårdsdrömmar och avkoppling. Här finns ett växthus där du kan odla dina egna tomater och din egen gurka och den stora tomten ger ett extra stort utrymme för odling och skörden kan du enkelt förvara i den rymliga jordkällaren. Trädgårdsredskapen förvarar du enklast i det timrade härbreet alldeles intill växthuset. Här bor du i ett lugnt och trivsamt område, med gångavstånd till förskola, mataffär och natursköna strövområden – perfekt för barnfamiljen eller den naturälskande. Cykelavstånd till centrala Sunne innebär bekvämt pendlande till stadens service och utbud. Härifrån når du lätt E45 för att underlätta pendling mellan Torsby-Karlstad om du jobbar på annan ort. Fryksdalsbanan ger även möjlighet till tågresor till Kil och vidare till Stockholm eller Göteborg.

Till huset hör även två garage och en praktisk carport, vilket gör vardagen enkel och bekväm.
Denna vackra villa kombinerar det bästa av gammaldags charm och modern funktionalitet – ett hem att älska i generationer.

Välkommen att upptäcka detta unika hem – en plats där historia möter nutid och naturen alltid finns nära till hands!

Om Bostaden

Beskrivning

Rumsbeskrivning på nedre plan:
Stor härlig huvudentré med trägolv, trätak och synliga timmerväggar. Här finns plast för en sittgrupp i anslutning till den öppna spisen. Härifrån når du enkelt den skifferbelagda uteplatsen som vetter mot söder.
Salongen med vackert trägolv och trätak. Här finns en stor vacker Fryksdalsspis med vackra gjutjärnsdekorationer och inmurade hyllor som ger förvaringsplatser.
Matsalen har det gamla trätaket bevarats och sedan laserats i en vit nyans. Här finns plats för ett större matbord för upp till 14-16 personer.
Det stora köket är fint planerat med bra bänkyta och bra förvaringsutrymmen med tanke på det extra skafferiet i anslutning till köket. Trägolv och vitmålat trätak. Murad kupa över spishällen som placerats på en vacker stenskiva.
Entréhall med klinkergolv och vitmålat brädtak. Södra väggen har mängder av fönster som ger ett härligt ljusinsläpp och här finns även utgången till den skifferbelagda uteplatsen under tak.
Tvättstuga med klinkergolv. Arbetsbänk och förvaringsskåp gör den praktisk och användarvänlig.
Wc med klinkergolv och mörkgrönt kakel på väggarna.
Klädkammare
Sällskapsrum med trägolv. Rummet är stort och kan även används som ett gästrum. Härifrån når du både det stora allrummet och källarutrymmet.
Duschrum med klinkergolv och grönt kaklade väggar.
Bastu.

Rumsbeskrivning på övre plan:
Hall med trägolv. Här finns plats för en mindre soffgrupp så att du kan använda utrymmet för tv-tittande eller sällskapsrum.
Bibliotek med trägolv.
Sovrum med trägolv och i taket finns träbalkar.
Kontorsrum med trägolv. Detta rum är så pass rymligt att det även skulle passa bra som ett sovrum.
Nytt duschrum med klinkergolv och väggarna är klädda med ett halvkakel (helkakel i duschzonen) som kombinerats med en målad yta.
Master bedroom med heltäckningsmatta. Från sovrummet så når du den stora takterrassen som är placerad mellan de båda byggnaderna som byggts samman för att kunna utgöra ett enda stort hus. Strax innanför sovrummet finns en walk in closet och ett eget badrum.
Badrummet har ett vackert klinkergolv och väggarna är helkaklade i vitt och en ljus lindblommegrön nyans.

Rumsbeskrivning på övre plan i vinkelbyggnaden:
Stort allrum med ryggåstak och synliga träbjälkar i taket. Här finns ett vackert trägolv och en charmig Fryksdalsspis. Här ifrån når du den stora balkongen som är belägen i söderläge.
Innanför allrummet finns ett stor rum som används som snickarverkstad. Detta rum skulle man kunna förändra till ytterligare ett sovrum om så önskas.

Rumsbeskrivning i källardelen:
Hall
Förråd
Stort förrådsrum, här finns bergvärmepumpen placerad. Här finns den gamla oljetanken placerad.
Pannrum. Här finns den gamla oljepannan kvar.

Sammanfattning

Typ: Villa, 2-plan med inredningsbar vind
Rum: 10, varav 2 sovrum, möjlighet till 5 sovrum
Boarea: 441 m2
Biarea: 120 m2
Tomtarea: 6 271 m2
Utgångspris: 6 300 000 kr
Byggnadsår: 1972
Driftkostnad: 37 512 kr/år
Upplåtelseform: Äganderätt

Kommentar till boarean

Boareauppgift enligt: Arean är uppskattad

Uppvärmning

Bergvärme (vattenburen)

Byggnadssätt

Vatten: Kommunalt vatten året om
Avlopp: Kommunalt avlopp
Grund: Torpargrund (mindre källardel)
Stomme: Timmer/trä
Bjälklag: Trä
Fasad: Träfasad
Fönster: 2-glasfönster
Takbeklädnad: Skiffer
Utvändiga plåtarbeten: Galvaniserad målad plåt
Ventilation: Självdrag
Murstock: Murad skorsten
Murstock kommentar: , Det finns flertalet eldstäder i bostaden. Dessa är ej använda på längre tid varpå man bör låta göra en besiktning av skorstenarna innan de tas i bruk.

Tomt/balkong/uteplats

Skifferbelagd uteplats under tak i söderläge.
Stor takterrass med trätrall.
Balkong under tak i söderläge.

Övriga byggnader

Magasinsbyggnad med förråd och loft.
Jordkällare

Parkering

Parkeringsmöjligheter i något av de båda garagen eller carporten som ligger i den östra delen av byggnaden.

Allmänt

Län: Värmland
Kommun: Sunne
Fastighetsbeteckning: SUNNE ÅMBERG 6:111

Planbestämmelser

Nordvästra delen av centralorten, Stadsplan (Beslutsdatum: 1975-04-23, Senast ändrad: 2023-05-11)

Övrigt

Enligt säljarens önskemål så ska skriftligt och giltigt lånelöfte uppvisas för att kunna boka visning.

Ekonomi

Utgångspris

6 300 000 kr

Driftkostnader

37 512 kr/år
Årlig elförbrukning: 9500 kWh/år

Fördelas enligt följande

El: 18 000 kr
Vatten och avlopp: 4 728 kr
Försäkring: 12 664 kr
Renhållning: 2 120 kr
Beskrivning: OBS! Driftkostnaderna baseras på det senaste årets förbrukning och huset har de senaste två åren varit obebott. Dock har man alltid haft en underhållsvärme på i byggnaden på 16 grader under vintertid.

Utöver ovanstående eventuella driftkostnader tillkommer fastighetsavgift med belopp om 10 074 kr.

Observera att driftskostnaderna som anges ovan baseras på säljarens faktiska kostnader det senaste året om inget annat särskilt anges.
Vilka driftskostnader köparen kommer att ha beror på hur bostaden kommer att användas, vilka abonnemang som kommer att tecknas och övriga omständigheter i det enskilda fallet.

Taxering

Byggnad: 1 838 000 kr
Mark: 450 000 kr
Totalt: 2 288 000 kr
Taxeringsår: 2024
Taxeringsvärdet är: Fastställt
Värdeår: 1972
Standardpoäng: 33
Typkod: 220, Småhusenhet, bebyggd

Pantbrev

Det finns 3 pantbrev uttaget om sammanlagt 550 000 kr.

Energideklaration

Status: Energideklaration ej utförd

Försäkring

Svensk Fastighetsförmedling samarbetar med If för att underlätta ditt bostadsköp. När du köper bostad eller fritidshus genom Svensk Fastighetsförmedling är den automatiskt försäkrad. Vi kallar det Flytta in-försäkring. Den är kostnadsfri och gäller under de första 30 dagarna. Fortsätter du sedan att försäkra hemmet eller fritidshuset hos If får du 10% rabatt och flera andra unika förmåner. Fråga din mäklare för att ta del av erbjudandet.
Trygg affär - Varudeklarerad Villa

Alla bilder

+ 50 Visa alla 56 bilder
 

Planritning

Karta och område

Höglundagatan 52, Sunne

Kalkyl

Vad kostar nya boendet?

Överstiger era sammanlagda årsinkomster kronor före skatt? Svaret påverkar amorteringarna.

Fler värden

Här nedanför kan du ändra ränta, amortering och driftkostnader och se hur de påverkar kalkylen.

Återställ alla värden
Visa fler

Ränta

Amortering

Driftkostnad per månad

Driftkostnad/månad

Observera att driftskostnaderna som anges ovan baseras på säljarens faktiska kostnader det senaste året om inget annat särskilt anges.

Vilka driftskostnader köparen kommer att ha beror på hur bostaden kommer att användas, vilka abonnemang som kommer att tecknas och övriga omständigheter i det enskilda fallet.

Boendekostnad per månad

Ränta
+  kr
Driftkostnad
+  kr
Fastighetsskatt/-avgift
+ 840 kr
Skattereduktion
 kr
Summa
ca  kr
Amortering
+  kr
Inkl amortering
ca  kr

Ansök om lånelöfte

Hos vårt systerbolag Ordna Bolån kan du enkelt ansöka om lånelöfte eller bolån. En ansökan, svar från flera banker.

Intresseformulär

Fyll i formuläret så kontaktar vi dig inom kort.

Kontaktuppgifter
Vänligen ange förnamn
Vänligen ange efternamn
Vänligen ange telefonnummer
Vänligen ange e-post
500 tecken kvar
Har du lånelöfte?*
Vill du ha hjälp med lånelöfte?
Vill du få nyheter och erbjudanden?

Oj, något gick fel! Försök igen. 

Ett ögonblick!
Tack, dina uppgifter är sparade!
Du fyllde inte i någon e-postadress. Ange den nedan för att inte missa någon information.
 
 
 
Ta del av vår integritetspolicy
 
 
 

Liknande objekt till salu

Sunne
Höglundagatan 52
Dela bostad: Dela på Facebook Dela med epost Dela med sms Kopiera länk Länken kopierad

Planritning