
Såld 05 feb 2025
Slutpris
1 795 000 kr
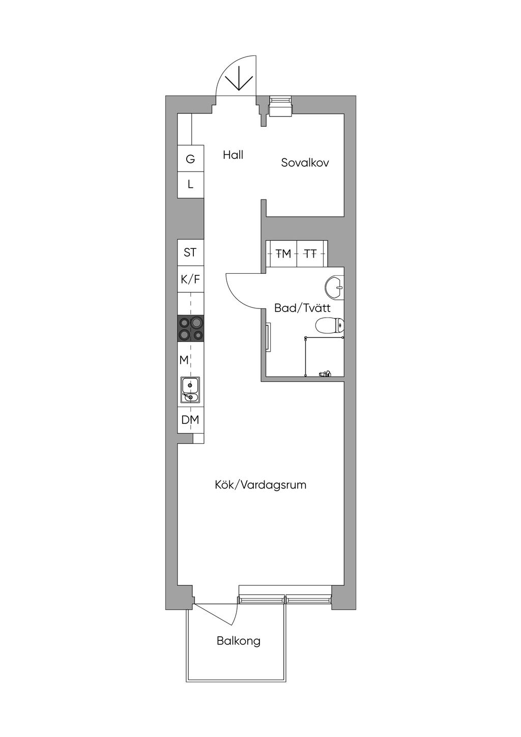
Genomgående 1,5 rok med sovalkov och balkong i söderläge!
Lediga tider:
fre 17/10 och mån 20/10
Planritning

Viss avvikelse kan förekomma. Skala och mått kan avvika från verkligheten.
Fullskärm