
Såld 22 sep 2024
Slutpris
3 400 000 kr
Toppskick med balkong i västerläge
Lediga tider:
fre 17/10 och mån 20/10
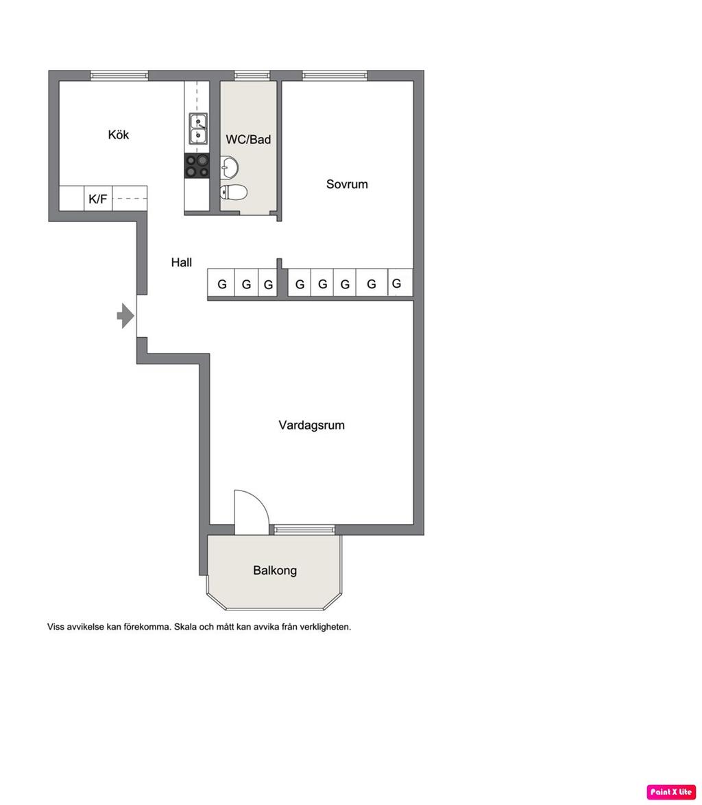
Planritning

Viss avvikelse kan förekomma. Skala och mått kan avvika från verkligheten.
Fullskärm