
Såld 19 apr 2024
Slutpris
1 750 000 kr
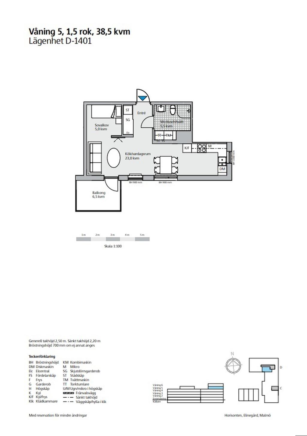
Välplanerad 1,5:a med balkong i söderläge med utsikt över gården och kalkbrottet
Lediga tider:
mån 20/10 och ons 22/10
Planritning

Viss avvikelse kan förekomma. Skala och mått kan avvika från verkligheten.
Fullskärm