
Såld 29 apr 2024
Slutpris
3 675 000 kr
Liftnära boende i nybyggda Fjällbäcken - Söderåsen, Lindvallen
Kontakta ansvarig mäklare
Alexandra Kristofic
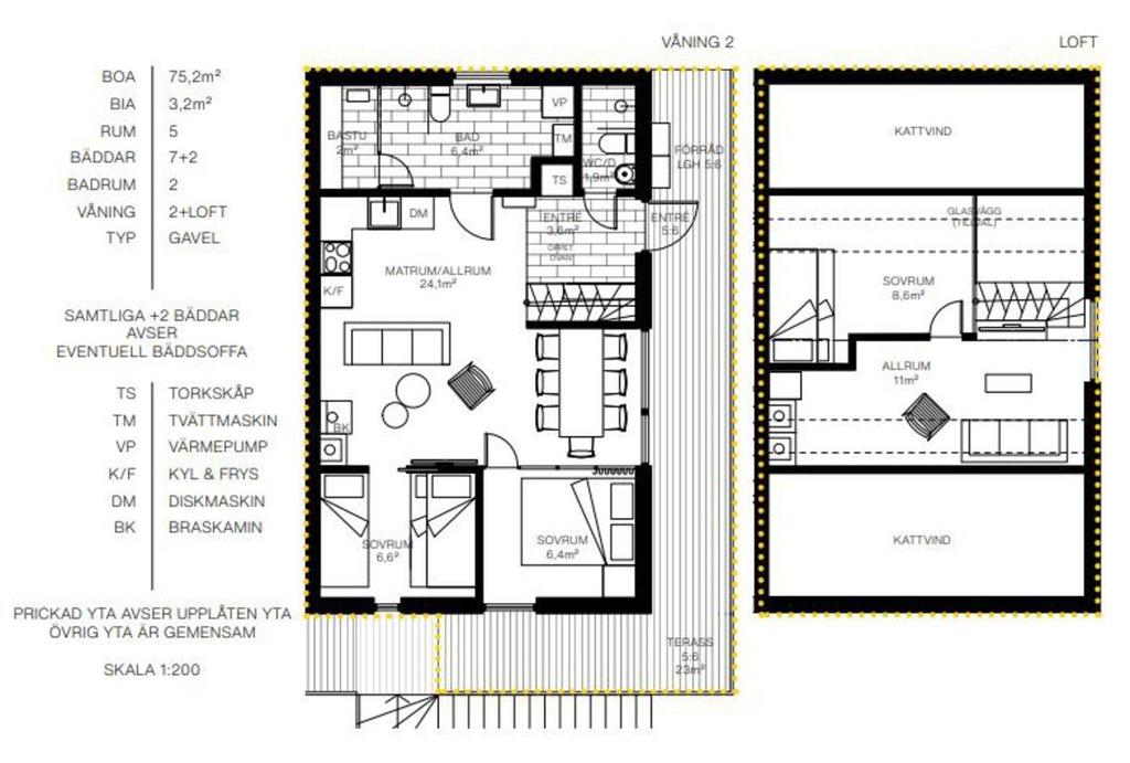
Planritning

Viss avvikelse kan förekomma. Skala och mått kan avvika från verkligheten.
Fullskärm