
Såld 01 dec 2023
Slutpris
3 600 000 kr
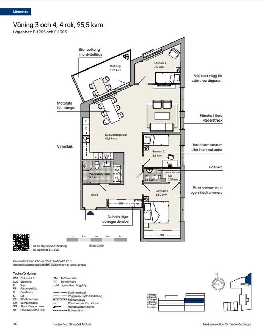
Luftig 4:a med spännande planlösning
Lediga tider:
mån 20/10 och ons 22/10
Planritning

Viss avvikelse kan förekomma. Skala och mått kan avvika från verkligheten.
Fullskärm