
Såld 07 jun 2024
Slutpris
1 400 000 kr
Trivsam 2:a med stor uteplats och gångavstånd till Universitetet.
Lediga tider:
mån 20/10 och tis 21/10
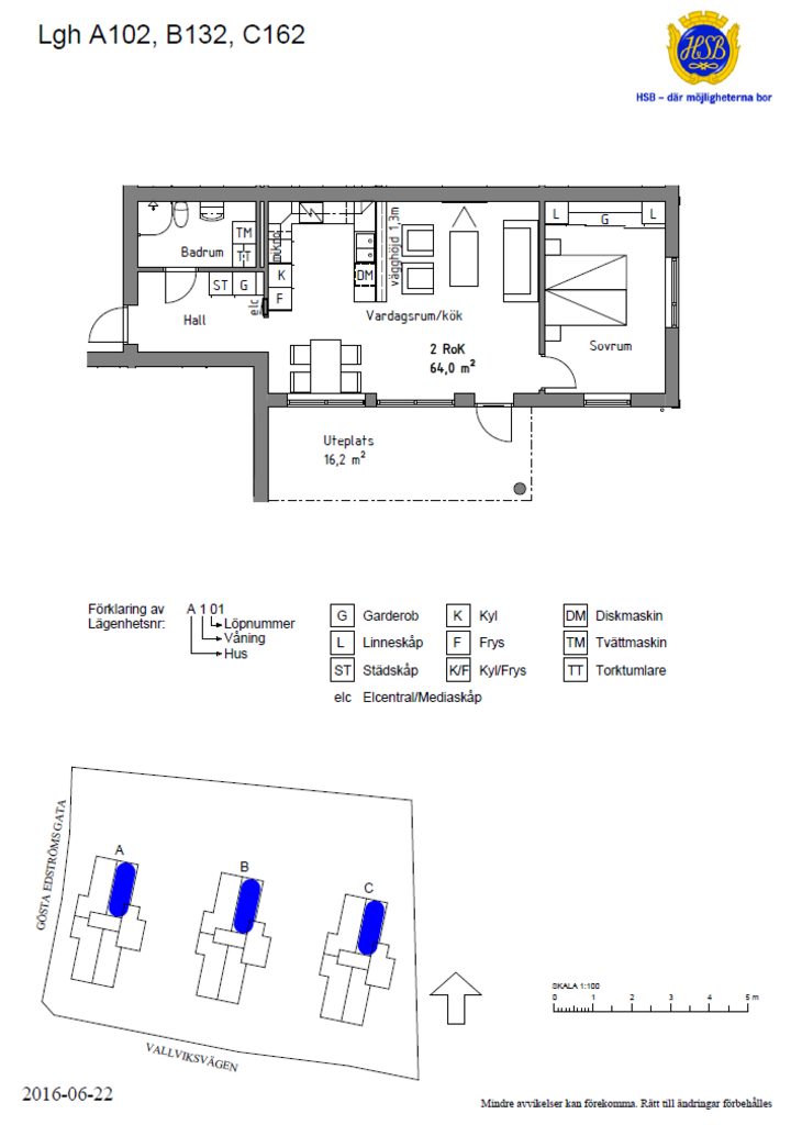
Planritning

Viss avvikelse kan förekomma. Skala och mått kan avvika från verkligheten.
Fullskärm