Såld 11 sep 2023
Slutpris
850 000 kr
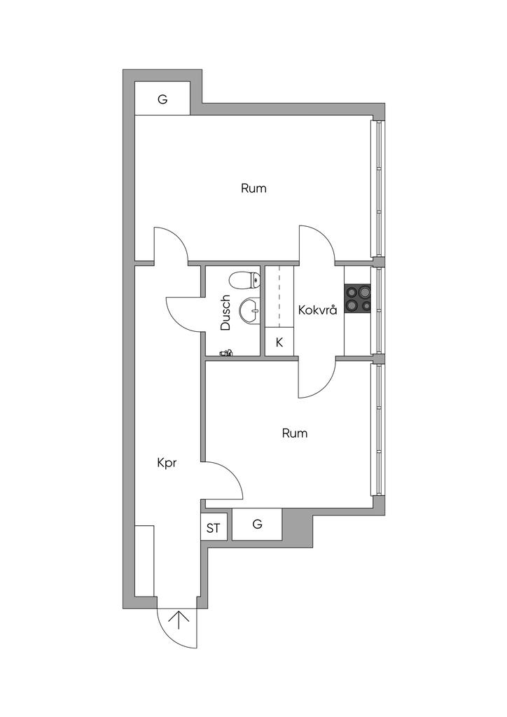
Tvårummare med kokvrå på sjunde våningen!
Planritning

Planlösning,
Viss avvikelse kan förekomma. Skala och mått kan avvika från verkligheten.