Såld 19 sep 2023
Slutpris
5 000 000 kr
På eftertraktat hörnläge på Limhamn säljs nu ett 180 kvm stort enplanshus med många möjligheter!
Lediga tider:
fre 17/10 och mån 20/10
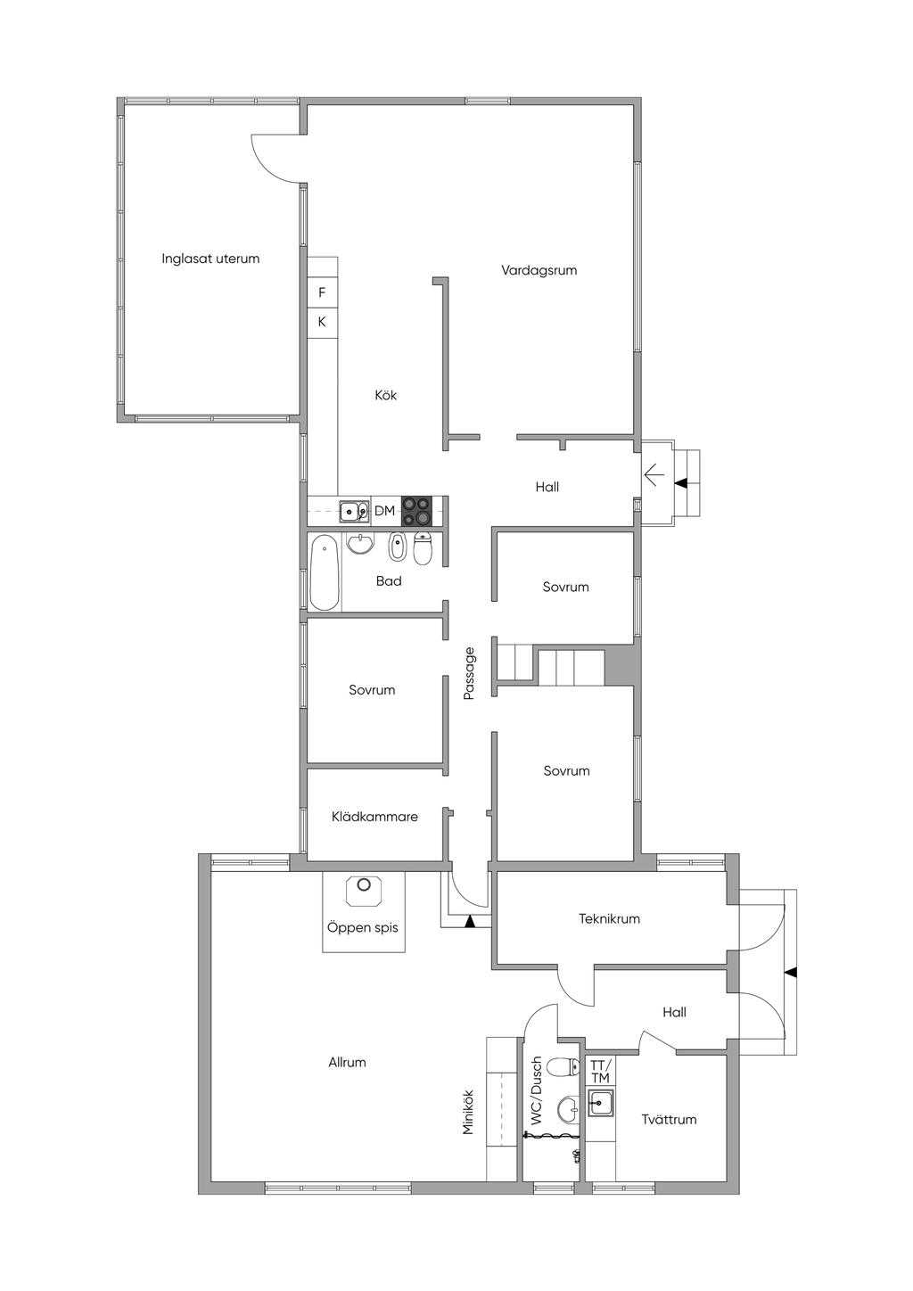
Planritning

Viss avvikelse kan förekomma. Skala och mått kan avvika från verkligheten.
FullskärmKarta och område
Stiftsgatan 1, Limhamn
Trygg affär - Varudeklarerad Villa
Marknadens mest omfattande paket för besiktning och försäkring ger trygghet i 10 år*.
*Enligt marknadsbevakning 2025-04-02
Läs mer här