Såld 07 jul 2023
Slutpris
3 050 000 kr
Inflyttningsklart radhus i Norra Viken!
Lediga tider:
fre 17/10 och mån 20/10
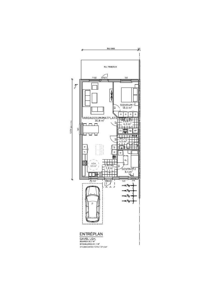
Planritning

Planskiss,
Viss avvikelse kan förekomma. Skala och mått kan avvika från verkligheten.