
Såld 08 sep 2025
Slutpris ej tillgängligt
-kontakta mäklaren för mer information
Unikt läge - Drömboende vid havet – Björkö
Lediga tider:
mån 20/10 och tis 21/10
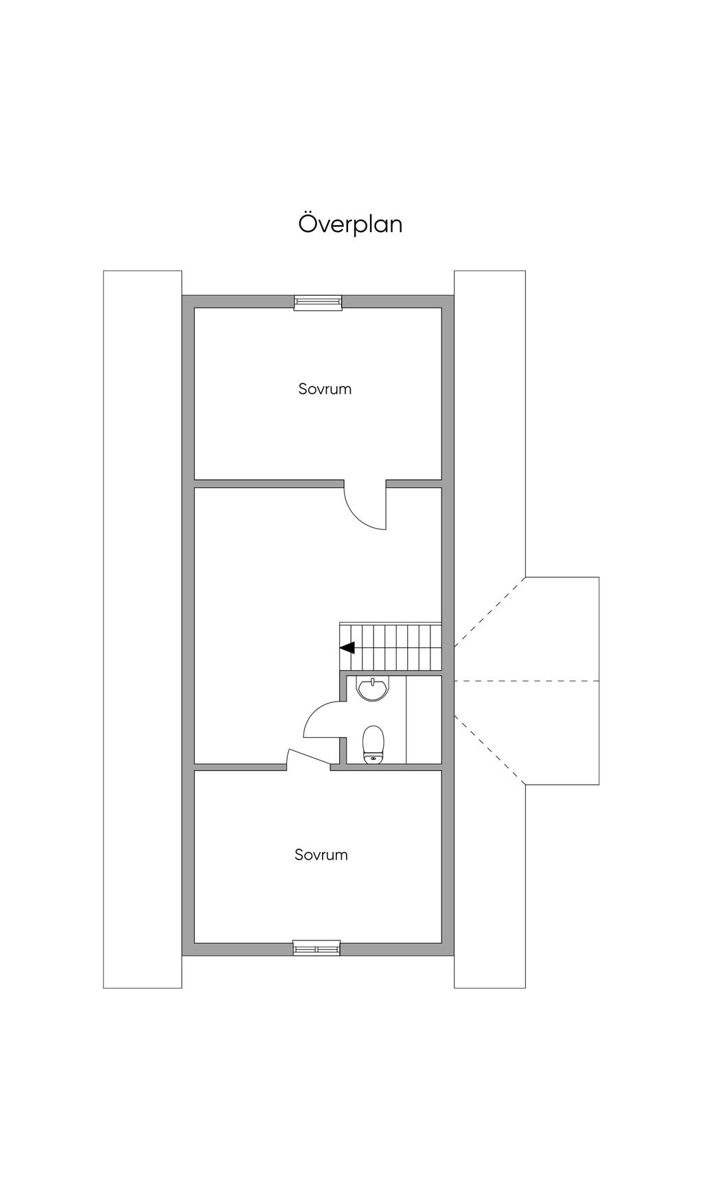
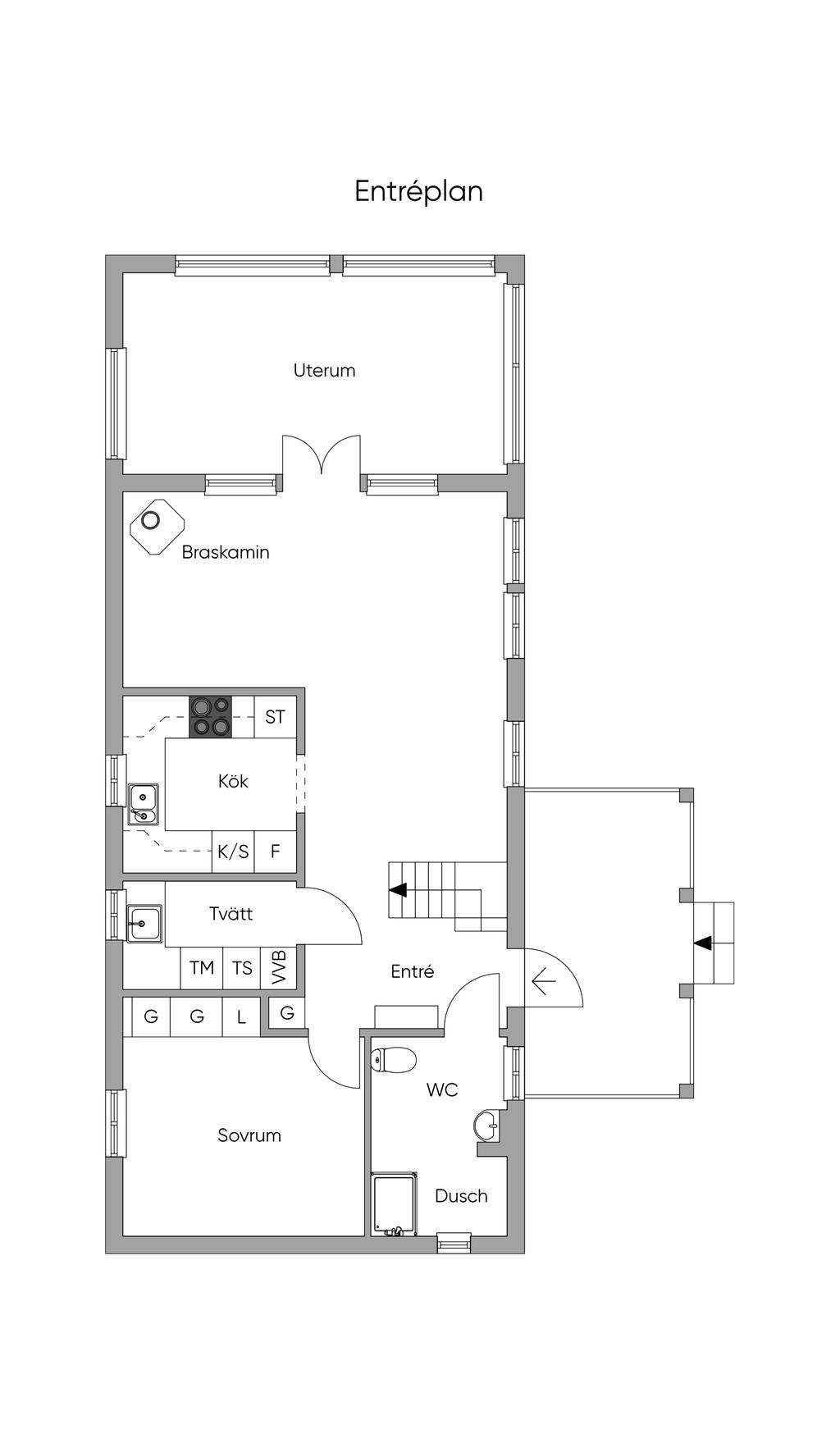
Planritning
Karta och område
Skarviksvägen 99, Bohus-Björkö
Trygg affär - Varudeklarerad Villa
Marknadens mest omfattande paket för besiktning och försäkring ger trygghet i 10 år*.
*Enligt marknadsbevakning 2025-04-02
Läs mer här