
Såld 03 maj 2025
Lediga tider:
ons 22/10 och tor 23/10
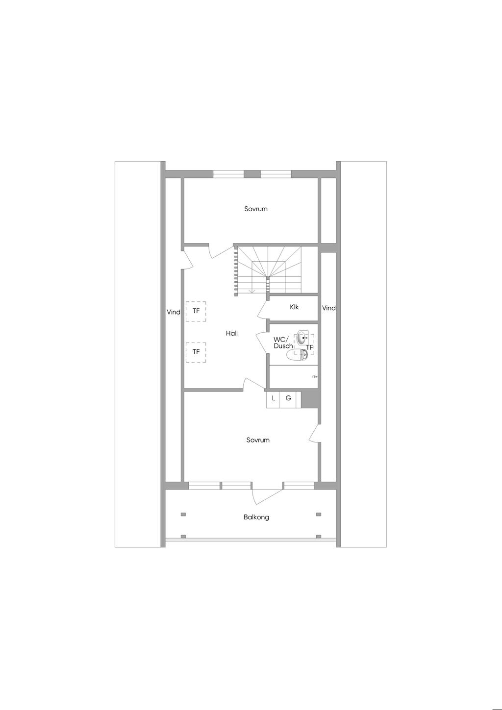
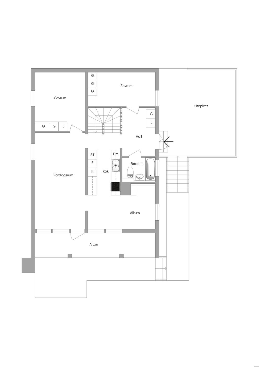
Planritning
Karta och område
Doppingegatan 3, Hisings Backa
Trygg affär - Varudeklarerad Villa
Marknadens mest omfattande paket för besiktning och försäkring ger trygghet i 10 år*.
*Enligt marknadsbevakning 2025-04-02
Läs mer här