Hoppa till innehåll
Såld 11 mar 2024
Slutpris
2 150 000 kr

Söderbodane 101, Tösse

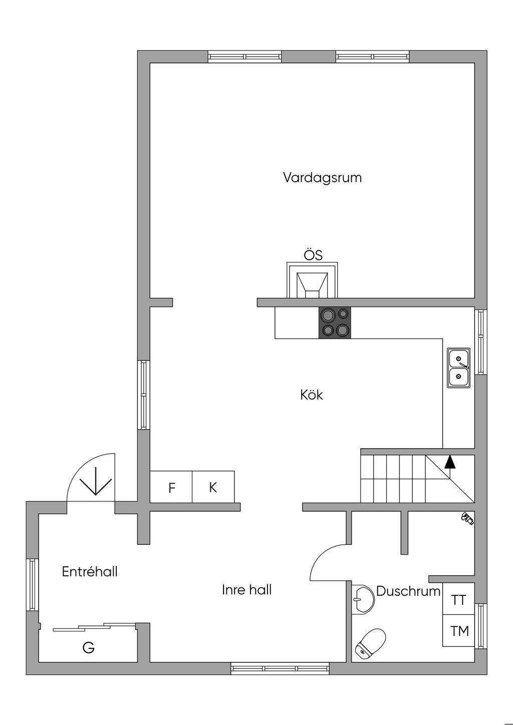
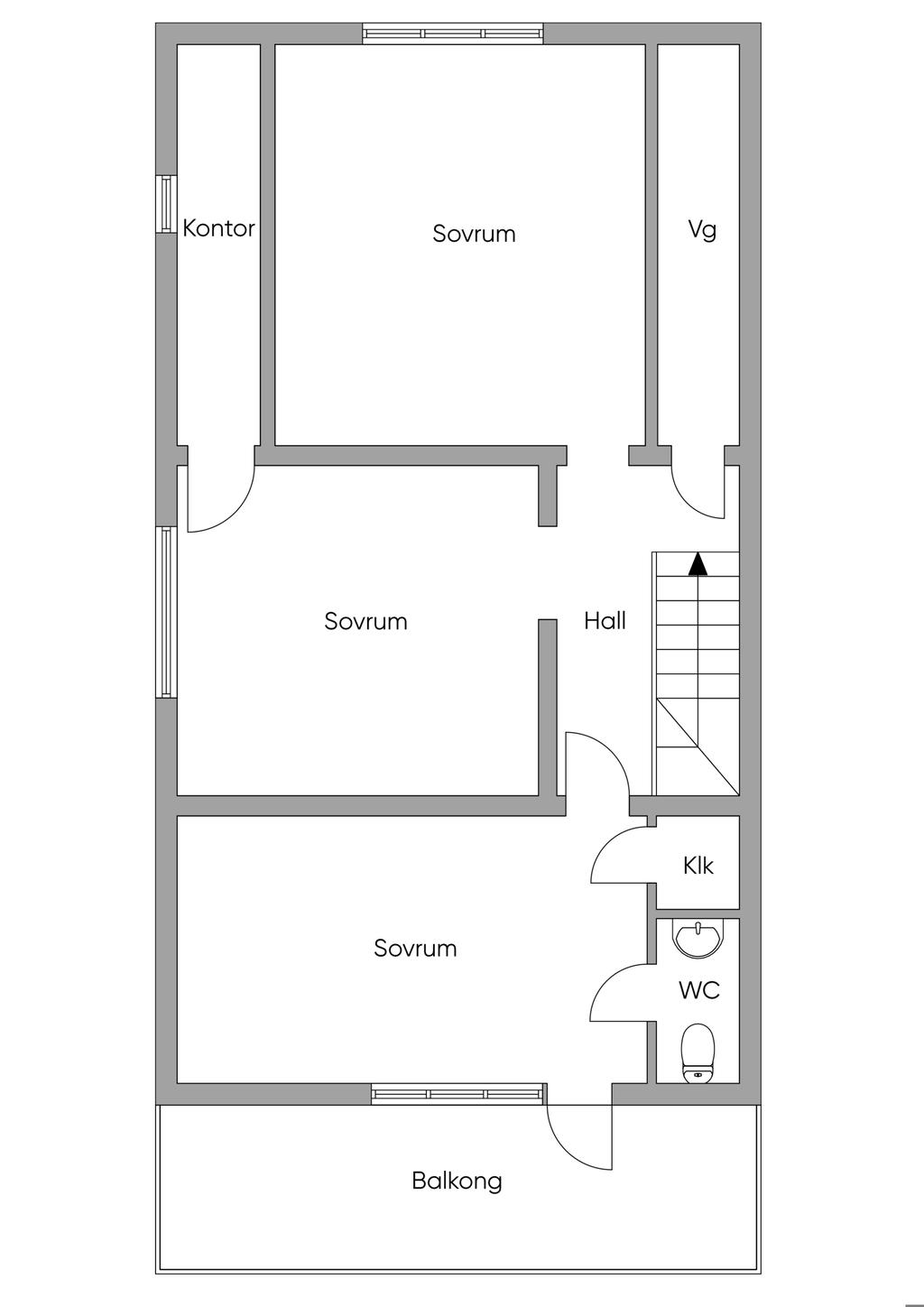
  • Typ: Villa, 1½-plan
  • Rum: 4, varav 3 sovrum
  • Boarea: 130 m2
  • Tomtarea: 9 227 m2
  • Byggnadsår: 1920
  • Driftkostnad: 31 100 kr/år
  • Upplåtelseform: Äganderätt

Planritning

Karta och område

Söderbodane 101, Tösse

Omdömen från kunder i Åmål

2026-02-20
Mycket bra mottagande o respons,samt fin uppföljningen vid budgivning o allt annat
Stig-Arne K
2026-02-07
Trevliga , duktiga och hjälpsamma samt att dom kan sin sak dvs göra så att både säljare och köpare blir nöjda (detta är mycket viktigt). Återkopplar alltid och snabbt. Vi har alltid använt Svensk Fastighetsförmedling Åmål och vari...
Niklas S
2025-12-03
Helt perfekt från första kontakten och alla mina frågor efteråt. Supertrevlig och kompetent.
Rene W
2025-10-23
Jag är mycket nöjd med den hjälp jag fick av Svensk Fastighetsförmedling från första mobilsamtalet i början av september till oktober när köpeavtalet skrevs under med säljaren. Efter ett tips om villan av en bekant som gjorde mig...
Willy N
2025-08-30
Dom är jätte trevliga och hjälpsamma. Dom ljuger inte för att sälja utan är ärliga.
Malin G
2025-08-29
Trevlig och professionell mäklare.
Sofia S
2025-07-07
Vår mäklare har alltid bemött oss på ett exemplariskt sätt samt varit lätt att kontakta, hjälpsam i alla lägen, och har stöttat oss som köper hus för första gången och inte alltid har koll på allt. Efter att ha träffat flera olika...
Chelsea F
2025-07-05
Allt har varit helt toppen vi känner oss trygga med en jätte bra mäklare
Eva L
2025-06-26
Mycket trevligt bemötande och mäklaren berättade klart och tydligt hur försäljningen går till. Känt mig trygg och respekterad under affärens gång. Har tidigare anlitat Svensk fastighetsförmedling vid min villaförsäljning och komme...
Lena W
 
Steg 1/3 - Bostadsuppgifter
Steg 2/3 - Välj tid för mötet
Steg 3/3 - Kontaktuppgifter
Steg 4/4 - Slutför bokning
Steg 3/3 - Kontaktuppgifter

Boka tid med en mäklare för värdering

1. Fyll i dina bostadsuppgifter
2. Välj tid och mäklare i kalendern
3. Mäklaren ringer innan besöket

Boka tid med en mäklare som passar dig och din bostad

Så här går det till
1. Fyll i dina bostadsuppgifter
2. Välj tid och mäklare i kalendern
3. Mäklaren ringer innan besöket
Vi ringer dig för att boka en tid
Vi hittade inga lediga tider just nu. Fyll i dina kontaktuppgifter nedan så ringer vi upp för att boka in en passande tid.
Vi ringer dig för att en boka tid
Vi hittade inga lediga tider. Men det är inga problem, vi ringer upp för att hitta en passande tid.
Fyll i dina kontaktuppgifter
Dubbelkolla att uppgifterna stämmer så att mäklaren kan nå dig innan mötet.
Fyll i dina kontaktuppgifter
Vänligen fyll i dina uppgifter nedan så ringer vi upp dig för att boka en tid.
Mäklare:
Tid:

Hur kontaktar vi dig?

Denna sida skyddas av reCAPTCHA och Googles Integritetspolicy och Användarvillkor gäller.

Oj, något gick fel. Försök gärna igen. 

En muntlig värdering är oftast gratis, men om du bor långt bort från vårt kontor kan en mindre avgift tillkomma. I så fall stämmer mäklaren av det med dig innan.

Vi tar en avgift för en skriftlig värdering för exempelvis bolån. Prata med din mäklare för att få ytterligare information om detta.

Du förbinder dig inte till någonting när du bokar en tid.

Hämtar tider...
Ett ögonblick!
Tack, dina uppgifter är sparade!
Lägg till gärna till epost för att inte missa något.

Liknande sålda bostäder

Liknande bostäder till salu