
Såld 20 jun 2024
Slutpris
1 400 000 kr
Perfekt planerat och hemtrevligt boende på trevliga, tysta och härliga Berghallagatan
Kontakta ansvarig mäklare
Victoria Håkansson
Lediga tider:
mån 20/10 och ons 22/10
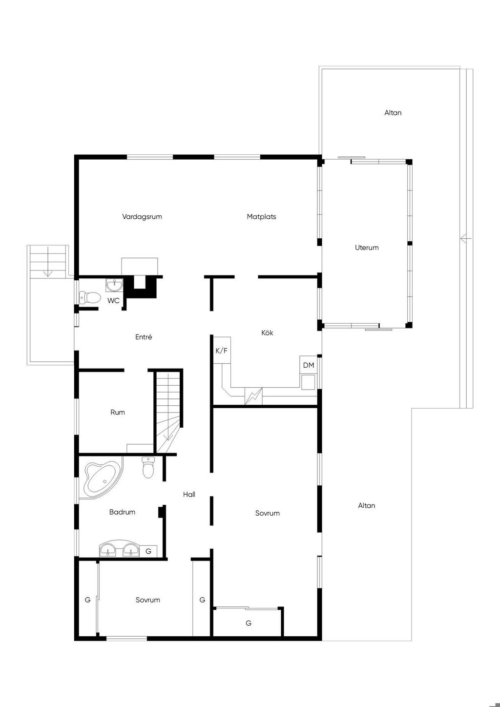
Planritning
Karta och område
Berghallagatan 3, Sunne
Trygg affär - Varudeklarerad Villa
Marknadens mest omfattande paket för besiktning och försäkring ger trygghet i 10 år*.
*Enligt marknadsbevakning 2025-04-02
Läs mer här