
Såld 05 okt 2025
Slutpris
5 090 000 kr
Luftig och nymålad 90-talspärla med omlagt tak och optimal planlösning
Kontakta ansvarig mäklare
Mikaela Westerling
Lediga tider:
mån 20/10 och tis 21/10
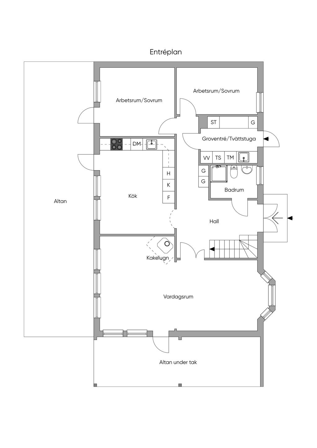
Planritning
Karta och område
Laddarvägen 5, Åkersberga
Trygg affär - Varudeklarerad Villa
Marknadens mest omfattande paket för besiktning och försäkring ger trygghet i 10 år*.
*Enligt marknadsbevakning 2025-04-02
Läs mer här