Hoppa till innehåll
Välkommen till Sammels väg 7
Såld 14 apr 2024
Slutpris
4 050 000 kr

Sammels väg 7, Tvååker

Enplansvilla byggt 2012 med insynsskyddat läge och fin utemiljö beläget ett stenkast från havet!

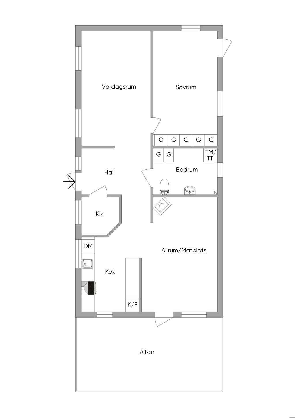
  • Typ: Villa, Enplanshus
  • Rum: 3, varav 1 sovrum
  • Boarea: 80 m2
  • Tomtarea: 715 m2
  • Byggnadsår: 2012
  • Upplåtelseform: Äganderätt

Planritning

Karta och område

Sammels väg 7, Tvååker

Trygg affär - Varudeklarerad Villa

Omdömen från kunder i Varberg

2026-02-27
Vi är mycket nöjda med mäklare Joackim Möller och kan varmt rekommendera honom. Han är professionell, engagerad och affärsmässig med en tydlig strategi från start till mål. Vi kände oss trygga genom hela processen tack vare hans s...
Marina A
2026-02-16
Trevlig mäklare. Väldigt bra service, tät kontakt. Snabb och smidig affär.
Emma I
2026-02-16
Noggrann, trevlig och väldigt jordnära säljare som besvarade alla våra frågor och förekom oss gång på gång. Kan varmt rekommendera Johanna på svenskfast i Varberg!
William C
2026-02-11
Vi har haft ett bra och professionellt samarbete med Svensk Fastighetsförmedling och Joackim Möller. Joackim och Johanna guidade oss tryggt och tydligt genom hela husförsäljningen. Vi är nöjda med processen och rekommenderar dem g...
Christina H
2026-02-05
Vår mäklare (Joackim) var mycket trevlig, proffsig och lösningsorienterad. Bra dialog hela vägen till slutet då fastigheten såldes.
Mauritz K
2026-01-30
Har blivit bemött av en trevlig säljare,
Harris H
2026-01-19
Jätteduktiga o proffsiga, lätta att ha o göra med.
Kerstin I
2025-12-14
Vi är lika nöjda med vår mäklare vid försäljning som vi var när vi köpte. Han har fantastisk tillgänglighet och är alltid snabb med svar och återkoppling. Tack vare hans kontaktnät kunde en förhandsvisning bokas direkt, och efter ...
Jennie H
2025-12-10
Jag är otroligt nöjd med hela processen från början till slut. Mäklaren var professionell, engagerad och väldigt lätt att ha kontakt med. Allt kändes tryggt och smidigt, och jag fick bra stöd genom hela affären. Rekommenderas varm...
Besart H
 
Steg 1/3 - Bostadsuppgifter
Steg 2/3 - Välj tid för mötet
Steg 3/3 - Kontaktuppgifter
Steg 4/4 - Slutför bokning
Steg 3/3 - Kontaktuppgifter

Boka tid med en mäklare för värdering

1. Fyll i dina bostadsuppgifter
2. Välj tid och mäklare i kalendern
3. Mäklaren ringer innan besöket

Boka tid med en mäklare som passar dig och din bostad

Så här går det till
1. Fyll i dina bostadsuppgifter
2. Välj tid och mäklare i kalendern
3. Mäklaren ringer innan besöket
Vi ringer dig för att boka en tid
Vi hittade inga lediga tider just nu. Fyll i dina kontaktuppgifter nedan så ringer vi upp för att boka in en passande tid.
Vi ringer dig för att en boka tid
Vi hittade inga lediga tider. Men det är inga problem, vi ringer upp för att hitta en passande tid.
Fyll i dina kontaktuppgifter
Dubbelkolla att uppgifterna stämmer så att mäklaren kan nå dig innan mötet.
Fyll i dina kontaktuppgifter
Vänligen fyll i dina uppgifter nedan så ringer vi upp dig för att boka en tid.
Mäklare:
Tid:

Hur kontaktar vi dig?

Denna sida skyddas av reCAPTCHA och Googles Integritetspolicy och Användarvillkor gäller.

Oj, något gick fel. Försök gärna igen. 

En muntlig värdering är oftast gratis, men om du bor långt bort från vårt kontor kan en mindre avgift tillkomma. I så fall stämmer mäklaren av det med dig innan.

Vi tar en avgift för en skriftlig värdering för exempelvis bolån. Prata med din mäklare för att få ytterligare information om detta.

Du förbinder dig inte till någonting när du bokar en tid.

Hämtar tider...
Ett ögonblick!
Tack, dina uppgifter är sparade!
Lägg till gärna till epost för att inte missa något.

Liknande sålda bostäder

Liknande bostäder till salu

Lediga tider: fre 6/3 och mån 9/3