Hoppa till innehåll
Forsbackan 5
Såld 11 nov 2025
Slutpris
350 000 kr

Forsbackan 5, Djurås

Charmigt fritidshus med sedumtak och inrett härbre i rofyllt skogsläge

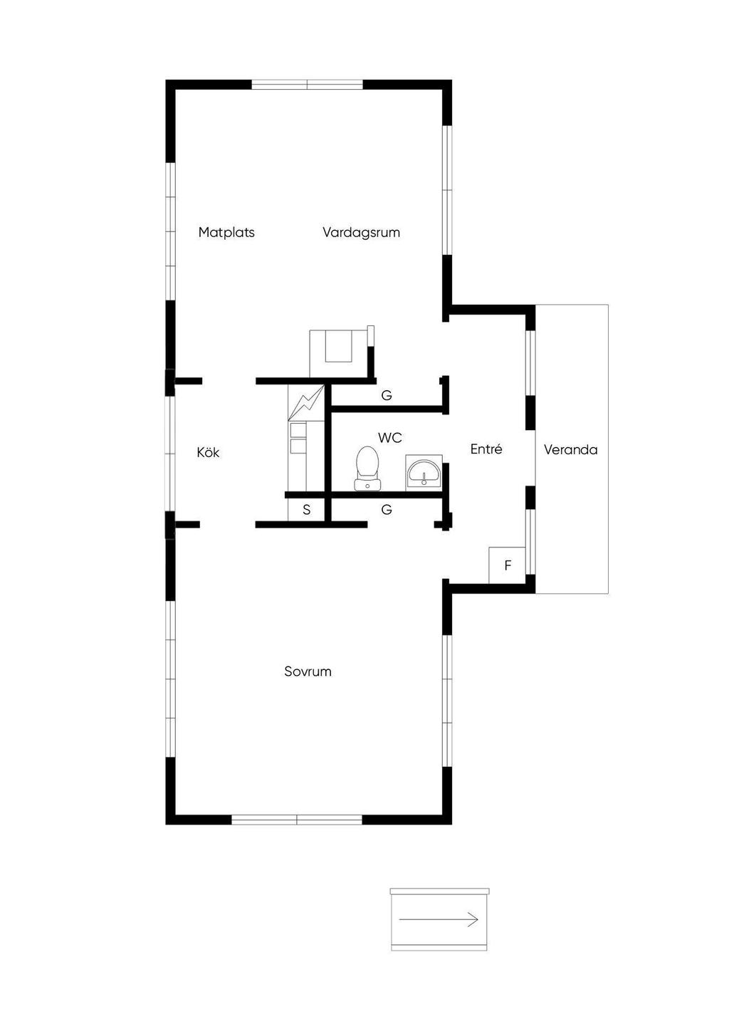
  • Typ: Villa, 1 plan med källare
  • Rum: 2, varav 1 sovrum
  • Boarea: 55 m2
  • Biarea: 50 m2
  • Tomtarea: 4 193 m2
  • Byggnadsår: 1964
  • Driftkostnad: 14 933 kr/år
  • Upplåtelseform: Äganderätt

Planritning

Karta och område

Forsbackan 5, Djurås

Kundernas omdömen

2026-02-27
Blev bra bemött redan från början av försäljningen hon berättade allt som skulle hända och i vilken ordning. Är bortrest så min dotter fick med fullmakt genomföra köpet.
Margareta J
2026-02-27
Trevligt bemötande. Anna är mycket engagerad och kunnig.
Susan S
2026-02-14
Allt har fungerat väldigt bra! Tydligt och informativt. Anna har varit väldigt professionell i sitt bemötande, på visning och vårt möte för att skriva köpekontrakt.
Charlotte L
2026-01-22
trevlig och tillmötesgående, professionell
Åke Ö
2026-01-15
Vi träffade Anna i samband med köp och kände direkt ett stort förtroende för henne. Vid försäljning var valet av mäklare väldigt enkelt. Rak och tydlig kommunikation. Alltid avsatt god tid vid de tillfällen vi träffats. Lyhörd, ...
Erika K
2026-01-05
Jag har blivit väldigt bra bemött av Anna B Pettersson. Hon är proffsig och kunnig så jag har känt mig trygg i hela processen.
Kerstin W
2025-12-30
Anna guidade oss genom försäljningen av vårt hus på ett pedagogiskt sätt där varje steg förklarades så att vi kände oss lugna och kände tillit. Hon lyssnade också in när vi tvekade eller undrade över något steg . Vi är mycket nöj...
Margareta H
2025-12-17
Anna r en engagerad , trevlig och professionell mäklare, hon har gjort allt och lite till för att göra denna ngot krångliga affär så bra och smidig som möjligt, måste också nämna Tina , hennes admin/assistent (vet inte exakt titel...
Jan C
2025-12-15
Anna är alltid lika bra att ha att göra med! Glad och trevlig och lätt att få tag på när som helst, kan hon inte svara i telefon så ringer hon alltid upp inom kort.
Maria J
 
Steg 1/3 - Bostadsuppgifter
Steg 2/3 - Välj tid för mötet
Steg 3/3 - Kontaktuppgifter
Steg 4/4 - Slutför bokning
Steg 3/3 - Kontaktuppgifter

Boka tid med en mäklare för värdering

1. Fyll i dina bostadsuppgifter
2. Välj tid och mäklare i kalendern
3. Mäklaren ringer innan besöket

Boka tid med en mäklare som passar dig och din bostad

Så här går det till
1. Fyll i dina bostadsuppgifter
2. Välj tid och mäklare i kalendern
3. Mäklaren ringer innan besöket
Vi ringer dig för att boka en tid
Vi hittade inga lediga tider just nu. Fyll i dina kontaktuppgifter nedan så ringer vi upp för att boka in en passande tid.
Vi ringer dig för att en boka tid
Vi hittade inga lediga tider. Men det är inga problem, vi ringer upp för att hitta en passande tid.
Fyll i dina kontaktuppgifter
Dubbelkolla att uppgifterna stämmer så att mäklaren kan nå dig innan mötet.
Fyll i dina kontaktuppgifter
Vänligen fyll i dina uppgifter nedan så ringer vi upp dig för att boka en tid.
Mäklare:
Tid:

Hur kontaktar vi dig?

Denna sida skyddas av reCAPTCHA och Googles Integritetspolicy och Användarvillkor gäller.

Oj, något gick fel. Försök gärna igen. 

En muntlig värdering är oftast gratis, men om du bor långt bort från vårt kontor kan en mindre avgift tillkomma. I så fall stämmer mäklaren av det med dig innan.

Vi tar en avgift för en skriftlig värdering för exempelvis bolån. Prata med din mäklare för att få ytterligare information om detta.

Du förbinder dig inte till någonting när du bokar en tid.

Hämtar tider...
Ett ögonblick!
Tack, dina uppgifter är sparade!
Lägg till gärna till epost för att inte missa något.

Liknande sålda bostäder

Liknande bostäder till salu

Lediga tider: ons 4/3 och mån 9/3