
Såld 30 jul 2025
Slutpris
4 500 000 kr
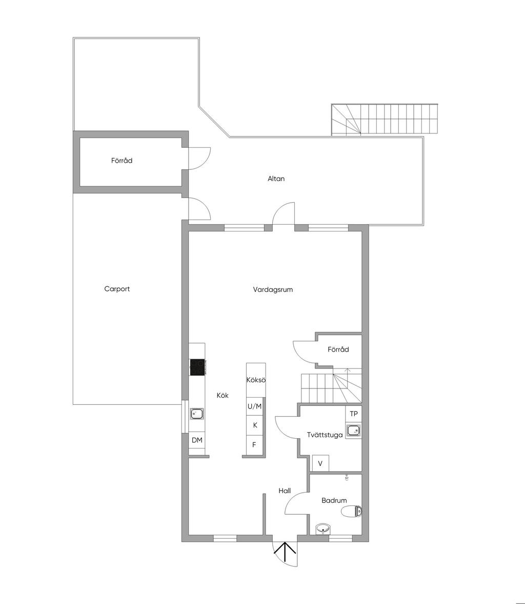
Bostadsrättshus i Lindome
Lediga tider:
tor 23/10 och mån 27/10