Hoppa till innehåll
 
Budgivning pågår
Högsta bud: 
5 500 000 kr
Pris: 5 900 000 kr
Skogstorp

Åletas väg 20

Budgivning pågår
Högsta bud: 
5 500 000 kr
Pris: 5 900 000 kr

Naturnära, Enplan & Nybyggt 2025

  • Typ: Villa, 1-plan
  • Rum: 6, varav 4 sovrum
  • Boarea: 163 m2
  • Byggnadsår: 2025
  • Driftkostnad: 36 146 kr/år
  • Upplåtelseform: Äganderätt

Med höstens härliga skogspromenader precis runt hörnet och en kort cykeltur till sommarens kvällsdopp, finner vi denna toppmodern och nybyggda enplansvilla. Stilrent designad exteriör med vit putsad fasad, stora svarta spröjsade fönster, svart betongtegel och effektfull fasadbelysning och en planlösning som designats för ett socialt liv. Med sociala ytor i öppen planlösning, ett extra allrum mellan 3 sovrum och ett separat 4:e master bedroom med eget badrum och walk-in-closet, passar detta hem lika bra för småbarnsfamiljen och tonårsfamiljen som när barnen flugit ut. De öppna ytorna präglas av rymd och ljus med 2,70 m i takhöjd och maximalt ljusinsläpp från stora fönsterpartier, genomgående ljusa ytor och moderna, påkostade materialval såväl exteriört som interiört. Vattenburen golvvärme i alla rum, Svanenmärkt vinylgolv som tål både grusiga skor och leriga tassar samt två toppmoderna helkaklade badrum samt ett sobert sandfärgat kök från Ballingslöv. Rymligt altandäck med skyddat läge mot trädgårdens baksida. Här njuter man lata sommardagar i perfekt söderläge!
6 rum och kök, varav 4 sovrum, totalt 163 m². Insynsskyddad och lättskött trädgård om 931 m² (friköpt) omgiven av tujahäckar. Friliggande carport med svart falsat plåttak och generös uppfart med utrymme för både båt, släp och familjens bilar. Byggår 2025, kommunalt VA, stomme i sten/leca, mekanisk ventilation med återvinning och låga driftkostnader med bergvärmepump från CTC. Dessutom befriad från fastighetsavgift i 15 år.
Snabbt tillträde är möjligt.

VÄLKOMMEN IN
Utmed den lugna återvändsgatan Åletas väg, finner vi denna modernt inredda och optimalt planerade enplansvilla. En bred stenlagd gång leder upp till ett skyddat altandäck med utrymme för frukostbordet i morgonsolen intill den svarta entrédörren. Redan första stegen in i hallen känner man villans härliga rymd och ljus. Hallen har fått disponera en yta som har utrymme för inbyggd garderobsvägg om så önskas. På golvet ligger ett mörkt klinkergolv, som matchar snyggt till det ljusare vinylgolvet som knyter ihop ytorna i resten av huset. Rakt fram öppnar planlösningen upp mot bostadens hjärta. Här möts ett sandfärgat kök med matsal och vardagsrum i öppen planlösning, med generösa glaspartier som ger en härligt ljus. Köket är utformat för social samvaro med generösa arbetsytor och stor induktionshäll med integrerad fläkt. Inredningen har bra förvaringsutrymmen med fullstort skafferi, rejäla lådor i bänkskåpen och snyggt designad och dimbar belysning som ger både gott arbetsljus under matlagningen och mysbelysning under middagen. Den slimmade stenmönstrade bänkskivan matchar snyggt till luckorna och vitvarorna i borstat stål. Köksluckorna är släta med stilrena svarta knoppar som plockar upp det svarta i fönsterspröjsen. Den generösa matplatsen utmed fönsterpartiet ger utrymme för långbord som rymmer både släkt och vänner under årets festligheter. Härifrån har man perfekt uppsikt över barnens lekar i trädgården. Vardagsrummet rymmer en stor soffgrupp och har precis som matplatsen utgång till det insynsskyddade altandäcket utanför. Här njuter man av lata sommardagar och mysiga grillkvällar i bästa söderläge. Den lilla skogsdungen mot trädgårdens gavel ger en lummig känsla åt de lättskötta plana gräsytorna.
Från vardagsrummet nås ett master bedroom med walk-in-closet och eget lyxigt badrum med takdusch. I motstående gavel på huset finns en praktisk sovrumsavdelning med tre sovrum, badrum och ett allrum mitt emellan sovrummen. Allrummet passar perfekt som TV-hörna för barnen. Båda husets badrum är helkaklade med gråa klinkergolv, vita väggar, stilrena handdukstorkar, tvättställ med kommoder och takdusch med vikbara glasväggar. I det större badrummet, som nås från hallen, ryms flera i familjen utan att trängas. Här finns ett dubbeltvättställ, stort spegelskåp med belysning, dusch och utrymme för badkar om så önskas. I hallen finns även en gästtoalett och en praktiskt inredd tvättstuga med förvaringsutrymmen i skåp och garderob samt tvättho med rymlig bänkyta.

SKOGSTORP
I Skogstorp bor man nära naturen med svampskogen inpå knuten, fina promenadstråk utmed ån, och i vackra Rosenforsparken finns även ett av flera badställen. En kort promenad bort ligger Hyndevadsån, där det finns badbryggor och goda fiskemöjligheter. Området präglas av friliggande villor med insprängda grönytor med lekplatser och bollplaner. Precis intill finns en av områdets flera förskolor, och bara någon minut bort nås den omtyckta grundskolan Skogstorpsskolan F-9 samt idrottsplatsen och flera gröna lekytor.
Ytterligare några minuters promenad nås matbutik, pizzeria och gym. Strax intill nås löpspåret "Önstarundan" som löper utmed får- och hästhagar, skidspår och elljusspår som fortsätter till friluftsområdet i Vilsta. Även Sörmlandsleden passerar området där Skogstorp bjuder på både utsiktsplats och fornlämningar.
Buss med täta avgångar, 8 min med bil till Eskilstuna centrum och cykelbana hela vägen in till centrum. Bussen passerar förutom centrum och tågstationen även flera gymnasieskolor och Mälarsjukhuset. Ca 10 min med bil till Eskilstuna, eller E20.

Om Bostaden

Beskrivning

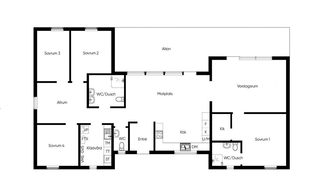
Hall - 4,2 m²: klinkergolv samt vinylgolv längre in. Nisch med utrymme för garderober.
Kök+matsal - 34,5 m²: Ballingslöv, lackade luckor, slimmad bänkskiva i laminat (30 mm) med matchande stänkskydd (12 mm). Utrustning: integrerad diskho, integrerad diskmaskin, kyl och frys i fullhöjd (noFrost och superCooling, dörrar i rostfritt stål och antiFingerprint), spishäll med induktion och två stora flexzoner och integrerad fläkt i hällen, inbyggd micro och ugn. Flexibel och dimbar belysning i skena ger både gott arbetsljus och mysbelysning. Rymlig matplats med utgång till altanen.
Vardagsrum - 24,5 m²: utgång till altan.
Gästtoalett - 2,2 m²: klinkergolv, wc, tvättställ, spegel.
Badrum 1 - 7 m²: helkaklat, klinkergolv, dubbelt tvättställ i kommod, spegelskåp, dusch med vikbara glasväggar och takduscharmatur, handdukstork. Eluttag på sidan om spegeln. Badrummet är stort nog att rymma även ett badkar.
Badrum 2 - 4,2 m²: helkaklat, klinkergolv, tvättställ i kommod, dusch med vikbara glasväggar och takduscharmatur, handdukstork.
Sovrum 1 - 16,1 m²: ingång till klädkammare och badrum 1.
Klädkammare - 3,1 m².
Sovrum 2 - 11,6 m².
Sovrum 3 - 10,2 m².
Sovrum 4 - 10,6 m².
Allrum - 12,7 m²: beläget mellan sovrum 2-4.
Tvättstuga - ca 8 m²: klinkergolv, värmepump, tvättho med bänkskiva, tvättmaskin, torktumlare.

Golv: Golvabia, Svensktillverkat och Svanenmärkt bullerdämpande vinylgolv med extra slitstark yta för miljöer med tuffare påfrestningar. Härdad vinyl som ger mjuk svikt och som känns varm och behaglig. Modell Maxwear, ek.
Väggar: släta målade, matt färg.
Innerdörrar: Dooria
Kök: Ballingslöv
Vitvaror: Siemens
Diskho: Stala
Blandare i kök: FM Mattsson
Inredning badrum: Ikea
WC-stolar: Ifö
Inredning tvättstuga: Ikea
Vind: vindslucka från hallen, spång för inspektion finns. Kanal för att dra in el på vinden finns framdraget.
Generellt många eluttag i hela huset, t ex 5 st dubbla eluttag i köket, 4 st eluttag i master-bedroom.

UTEPLATSER
Altandäck i anslutning till entré. Läge: norr.
Rymligt trädäck mot trädgårdens baksida. Sol hela dagen. Läge: söder.

FÖRRÅDSBOD
Förråd för tex trädgårdsredskap och cyklar.

Sammanfattning

Typ: Villa, 1-plan
Rum: 6, varav 4 sovrum
Boarea: 163 m2
Pris (Utgångspris): 5 900 000 kr
Byggnadsår: 2025
Driftkostnad: 36 146 kr/år
Upplåtelseform: Äganderätt

Kommentar till boarean

Boareauppgift enligt: Mätning

Uppvärmning

Bergvärmepump
Märke: CTC GSi 600

Byggnadssätt

Vatten: Kommunalt vatten året om
Avlopp: Kommunalt avlopp
Grund: Betongplatta på mark med underliggande isolering
Stomme: Sten/leca
Fasad: Puts
Fönster: 3-glas isolerfönster
Takbeklädnad: Betongpannor
Ventilation: Mekanisk från- och tilluft med värmeåtervinning (FTX)
Allmän information: Godkänd OVK.
Slutbesked finns.

Värmepump: CTC, 6Si600. Borrdjup 200 meter.
FTX: Acetec A100S
Färg: Beckers
Fönster: Elite
Ytterdörr: Diplomat

ENTREPRENÖRER
Tak: Tuuls tak
Stomme samt väggar: Gran Bygg
Grundläggning: A2 Bygg och entréprenad
Borrning: Sörmlands brunnsborrning
VA: Svennestam rörservice
El: Kurt-Görans elektriska

Tomt/balkong/uteplats

Lättskött och plan trädgård med gräsmatta omgiven av vintergröna tujahäckar. Vattenutkast och flera eluttag utomhus finns.

Utebelysning med plejd, styrs via app.

Parkering

P-platser: Asfalterad uppfart med carport och utrymme för parkering framför. Grusad yta på gaveln av huset, perfekt för uppställning av extra bil, släpvagn eller båt.

Carport: Carport med bandtäckt plåttak. Framdraget kanal för el till laddbox förberett.

Tv/Internetanslutning

Kanal framdraget för fiberkabel. Ej anslutet.

Allmänt

Län: Södermanland
Kommun: Eskilstuna
Fastighetsbeteckning: ESKILSTUNA HUSBY-REKARNE 3:438

Planbestämmelser

Detaljplan för husby-rekarne 3:13 m.fl., skogstorp, Detaljplan (Beslutsdatum: 2020-05-13, Registreringsdatum: 2020-11-12, Senast ändrad: 2023-08-10)

Ekonomi

Pris (Utgångspris)

5 900 000 kr

Driftkostnader

36 146 kr/år
Årlig elförbrukning: 10848 kWh/år

Fördelas enligt följande

El: 21 696 kr
Vatten och avlopp: 5 500 kr
Försäkring: 6 000 kr
Renhållning: 2 950 kr
Beskrivning: Schablonberäknade kostnader för renhållning, försäkring, vatten och avlopp.
Elen är beräknad på primärenergitalet från Energiberäkning av Svea Ingenjörsbyrå, med kostnad på i snitt 2 kr/kWh. I elkostnaden ingår uppvärmning och hushållsel.

Observera att driftskostnaderna som anges ovan baseras på säljarens faktiska kostnader det senaste året om inget annat särskilt anges.
Vilka driftskostnader köparen kommer att ha beror på hur bostaden kommer att användas, vilka abonnemang som kommer att tecknas och övriga omständigheter i det enskilda fallet.

Taxering

Mark: 667 000 kr
Totalt: 667 000 kr
Taxeringsår: 2025
Beskrivning: Observera att fastigheten är taxerad som 210 - Småhusenhet, tomtmark.
Taxeringsvärde för byggnad är ej fastställt.

Pantbrev

Det finns 0 pantbrev uttaget om sammanlagt 0 kr

Energideklaration

Status: Energideklaration är utförd
Energiprestanda: 80 kWh/kvm/år
Energiklass: CC
Specifik energianvändning: 45 kWh/kvm/år
Energideklaration utförd: 2025-11-20
Besiktningsman: Carl Segelborg, Anticimex AB

Försäkring

Svensk Fastighetsförmedling samarbetar med If för att underlätta ditt bostadsköp. När du köper bostad eller fritidshus genom Svensk Fastighetsförmedling är den automatiskt försäkrad. Vi kallar det Flytta in-försäkring. Den är kostnadsfri och gäller under de första 30 dagarna. Fortsätter du sedan att försäkra hemmet eller fritidshuset hos If får du 10% rabatt och flera andra unika förmåner. Fråga din mäklare för att ta del av erbjudandet.

Alla bilder

+ 45 Visa alla 51 bilder
 

Planritning

Karta och område

Åletas väg 20, Skogstorp

Kalkyl

Vad kostar nya boendet?

Fler värden

Här nedanför kan du ändra ränta, amortering och driftkostnader och se hur de påverkar kalkylen.

Återställ alla värden
Visa fler

Ränta

Amortering

Driftkostnad per månad

Driftkostnad/månad

Observera att driftskostnaderna som anges ovan baseras på säljarens faktiska kostnader det senaste året om inget annat särskilt anges.

Vilka driftskostnader köparen kommer att ha beror på hur bostaden kommer att användas, vilka abonnemang som kommer att tecknas och övriga omständigheter i det enskilda fallet.

Boendekostnad per månad

Ränta
+  kr
Driftkostnad
+  kr
Fastighetsskatt/-avgift *
+  
Skattereduktion
 kr
Summa
ca  kr
Amortering
+  kr
Inkl amortering
ca  kr
* Underlag för beräkning av fastighetsskatt/-avgift saknas och ingår därför inte i totalsumman.

Ansök om lånelöfte

Hos vårt systerbolag Ordna Bolån kan du enkelt ansöka om lånelöfte eller bolån. En ansökan, svar från flera banker.

Budgivning pågår

Just nu pågår budgivningen men du har fortfarande chans att kontakta mäklare.

Kontaktuppgifter
Vänligen ange förnamn
Vänligen ange efternamn
Vänligen ange telefonnummer
Vänligen ange e-post
500 tecken kvar
Har du lånelöfte?*
Vill du ha hjälp med lånelöfte?
Vill du få nyheter och erbjudanden?

Oj, något gick fel! Försök igen. 

Ett ögonblick!
Tack, dina uppgifter är sparade!
Du fyllde inte i någon e-postadress. Ange den nedan för att inte missa någon information.
 
 
 
Ta del av vår integritetspolicy
 
 
 

Liknande bostäder till salu

Eskilstuna
Åletas väg 20
Dela bostad: Dela på Facebook Dela med epost Dela med sms Kopiera länk Länken kopierad

Planritning