Hoppa till innehåll
Aplared

Sandsjövägen 12A

Förverkliga era husdrömmar tillsammans med A-hus!

  • Typ: Tomt
  • Tomtarea: 1 202 m2
  • Upplåtelseform: Äganderätt

Nu ges möjligheten att kunna skapa ert nya drömhem tillsammans med A-hus!

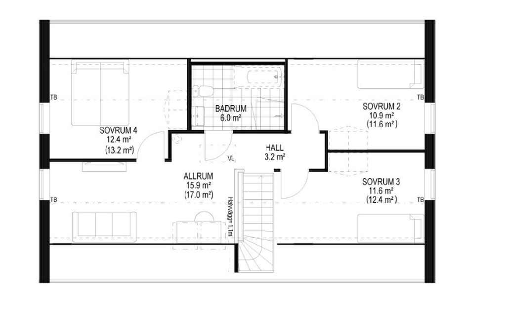
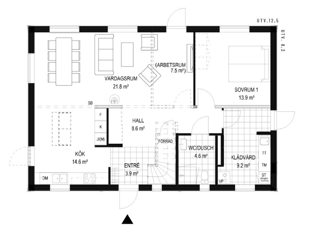
På denna tomt har du möjlighet att bygga det A-hus som passar dig bäst. A-hus har tagit fram ett förslag på husmodell Villa Tyresund i modern stil till denna tomt. Det är ett 1,5- planshus praktiskt planerat på 156kvm för hela familjen. I Villa Tyresund öppnar hallen upp direkt mot det stora vardagsrummet. Här har du ett ljust och modernt kök i ena änden och du tar dig smidigt ut på uteplatsen för att njuta av solen i den andra. Ert eget sovrum ligger behagligt med utsikt över trädgården och i anslutning till generösa förvaringsmöjligheter och det moderna badrummet. På ovanvåningen ligger familjedelen med tre sovrum, ett komplett badrum med både badkar och dusch, och ett ljust och stort sällskapsrum som barnen kan ha för sig själva. För fler alternativa husmodeller råder vi er till att prata med en hussäljare på A-hus, vänligen kontakta ansvarig mäklare för kontaktuppgifter.

Sandsjön är ett nytt attraktivt bostadsområde som ni via R27 enkelt tar er till på ynka 20 minuter från centrala Borås. Denna tomt är perfekt för den familj som söker ett familjevänligt läge med drömmar om att bygga nytt och bo med närhet till sjön och fin natur. Här kan ni njuta av den underhållsfria livsstilen och låta barnen leka fritt i den generösa trädgården på hela 1202 kvadratmeter.

Är ni intresserade av att se era möjligheter och prisförslag på olika musmodeller avseende denna tomt, är ni varmt välkomna att kontakta ansvariga mäklare!

Om Tomten

Sammanfattning

Typ: Tomt
Tomtarea: 1 202 m2
Utgångspris: 595 000 kr
Upplåtelseform: Äganderätt
Inflyttning: Enligt överenskommelse

Byggnadssätt

Vatten: Vatten saknas
Avlopp: Avlopp saknas
Byggrätt: Vid byggnation på denna tomt kommer man vara påkopplad till det kommunala vattnet och avloppet. Kostnaden för vatten och avlopp tillkommer. Kontakta mäklare för kalkyl.

Tomt/balkong/uteplats

Tomten är knuten till A-hus. Du kan som köpare välja husmodell utefter era egna behov.

Allmänt

Län: Västra Götaland
Kommun: Borås
Fastighetsbeteckning: BORÅS GRÄND 3:4

Övriga rättigheter och belastningar

Gemensamhetsanläggning: SVENLJUNGA SLÄTTHULT GA:1
Rättigheter förmån: Officialservitut: Rätt att anlägga, nyttja, underhålla och förnya väg till en bredd av 4 meter, figur x. - Väg

Ekonomi

Utgångspris

595 000 kr

Taxering

Typkod: 210, Småhusenhet, tomtmark

Pantbrev

Det finns 0 pantbrev uttaget om sammanlagt 0 kr

Alla bilder

+ 3 Visa alla 9 bilder
 

Karta och område

Sandsjövägen 12A, Aplared

Kalkyl

Vad kostar nya boendet?

Ansvarig mäklare erbjuder dig som ska köpa bostad en skriftlig beräkning av dina personliga boendekostnader. Kontakta mäklaren om du önskar en boendekostnadskalkyl.

Intresseformulär

Fyll i formuläret så kontaktar vi dig inom kort.

Kontaktuppgifter
Vänligen ange förnamn
Vänligen ange efternamn
Vänligen ange telefonnummer
Vänligen ange e-post
500 tecken kvar
Har du lånelöfte?*
Vill du ha hjälp med lånelöfte?
Vill du få nyheter och erbjudanden?

Oj, något gick fel! Försök igen. 

Ett ögonblick!
Tack, dina uppgifter är sparade!
Du fyllde inte i någon e-postadress. Ange den nedan för att inte missa någon information.
 
 
 
Ta del av vår integritetspolicy
 
 
 

Liknande bostäder till salu

Borås
Sandsjövägen 12A
Dela bostad: Dela på Facebook Dela med epost Dela med sms Kopiera länk Länken kopierad

Planritning