Hoppa till innehåll
Furusund

Tomt 1 Eknö Furusundsvägen 416

Nya livsrum i ett LB-hus på härlig tomt med vacker vattenspegel

  • Typ: Tomt
  • Tomtarea: 2 300 m2
  • Upplåtelseform: Äganderätt

Drömmer du om ett liv nära havet – där stillheten, naturen och skärgårdens magi möts? Nu har du chansen att skapa ditt eget paradis på vackra Eknö vid Furusund.

På den här generösa tomten i eftertraktat sydvästläge breder solen ut sig över dagen och kvällens gyllene ljus speglar sig i den glittrande vattenspegeln i Eknömaren nedanför. Jag vill passa på att berätta att maren genomgår en restaurering för att bli mer öppen. Den lätt sluttande tomten om cirka 2 500 kvm erbjuder en rofylld plats där naturen blir en självklar del av din vardag. Här bor du med endast cirka 150 meter till havet och Furusundsleden – en perfekt kombination av avskildhet och närhet till skärgårdens liv.
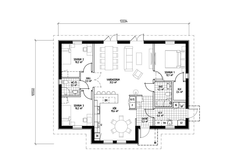
Här planeras ett stilrent och välplanerat LB-hus, modellen “Optimal 113” – ett hem som bjuder in till både bekvämt permanentboende och avkopplande fritidsliv. Med genomtänkta ytor och hög kvalitet skapas en plats där du kan forma ditt boende helt efter dina egna önskemål och behov.
Det angivna priset är för tomt och LB-hus "Optimal 113" där man skriver separat kontrakt med LB-hus.

Området ligger längs den natursköna Sju broars väg, en av Sveriges mest omtyckta vägsträckor, där varje resa blir en upplevelse i sig. Strax intill väntar Furusunds charmiga skärgårdsidyll med restauranger, caféer och hotell – en plats fylld av historia och inspiration, där både kultur och natur möts.

Det här är en möjlighet för dig som vill skapa något eget – ett hem att längta till, året runt. När du besöker tomten är det fantasin som får visa vägen – här börjar resan mot ditt nya liv i skärgården. Ta en titt på bilderna och föreställ dig den härliga vardagen i ett nybyggt boende på Eknö vid Furusund.
Välkommen att kontakta Mats Frölander på LB-hus för att få veta mer om huset. Tel: 0707494194 eller e-post: mats.frolander@lbhus.se

Välkommen att upptäcka möjligheterna och låta drömmen ta form.

Om Tomten

Sammanfattning

Typ: Tomt
Tomtarea: 2 300 m2
Pris (Utgångspris): 5 950 000 kr
Upplåtelseform: Äganderätt

Kommentar till boarean

Boareauppgift enligt: Arean är uppskattad

Byggnadssätt

Vatten: Enskilt vatten
Avlopp: Enskilt avlopp
Byggrätt: Fastigheten har ett tidigare förhandsbesked att uppföra bostäder på den tänkta tomten.

Tomt/balkong/uteplats

Arealen är cirka tills avstyckning av Lantmäteriet är genomförd.

Allmänt

Län: Stockholm
Kommun: Norrtälje
Område: Furusund
Fastighetsbeteckning: Del av Tomt 1 del av NORRTÄLJE EKNÖ 1:6

Omgivning

Eknö är ett naturskönt område på den östra delen av Svartnö, strax före Furusund i Norrtälje kommun, känt för sina sjötomter och närhet till skärgården. Området erbjuder lugn och ro, med bekvämt avstånd till Furusund med hamnkrog, caféer, hotell och båtliv.

Kommunikationer

Buss 634 från Norrtälje

Ekonomi

Pris (Utgångspris)

5 950 000 kr

Fördelas enligt följande

Beskrivning: Det finns ingen beräkning än då huset inte är byggt.

Taxering

Taxeringsår: 2023
Taxeringsvärdet är: Ej fastställt
Typkod: 210, Småhusenhet, tomtmark

Pantbrev

Det finns 0 pantbrev uttaget om sammanlagt 0 kr

Alla bilder

+ 15 Visa alla 21 bilder
 

Planritning

Karta och område

Tomt 1 Eknö Furusundsvägen 416, Furusund

Kalkyl

Vad kostar nya boendet?

Ansvarig mäklare erbjuder dig som ska köpa bostad en skriftlig beräkning av dina personliga boendekostnader. Kontakta mäklaren om du önskar en boendekostnadskalkyl.

Intresseformulär

Fyll i formuläret så kontaktar vi dig inom kort.

Kontaktuppgifter
Vänligen ange förnamn
Vänligen ange efternamn
Vänligen ange telefonnummer
Vänligen ange e-post
500 tecken kvar
Har du lånelöfte?*
Vill du ha hjälp med lånelöfte?
Vill du få nyheter och erbjudanden?

Oj, något gick fel! Försök igen. 

Ett ögonblick!
Tack, dina uppgifter är sparade!
Du fyllde inte i någon e-postadress. Ange den nedan för att inte missa någon information.
 
 
 
Ta del av vår integritetspolicy
 
 
 

Liknande bostäder till salu

Furusund, Norrtälje
Tomt 1 Eknö Furusundsvägen 416
Dela bostad: Dela på Facebook Dela med epost Dela med sms Kopiera länk Länken kopierad

Planritning