Hoppa till innehåll
Färjestaden

Renfanans väg 4

Havsnära tomt i området Lökenäs

  • Typ: Tomt
  • Tomtarea: 1 365 m2
  • Upplåtelseform: Äganderätt

Sällsynt tillfälle! Missa inte denna fina möjlighet att bli nybyggare i ett av Ölands mest natur- och havsnära områden som har utvecklats på sistone.
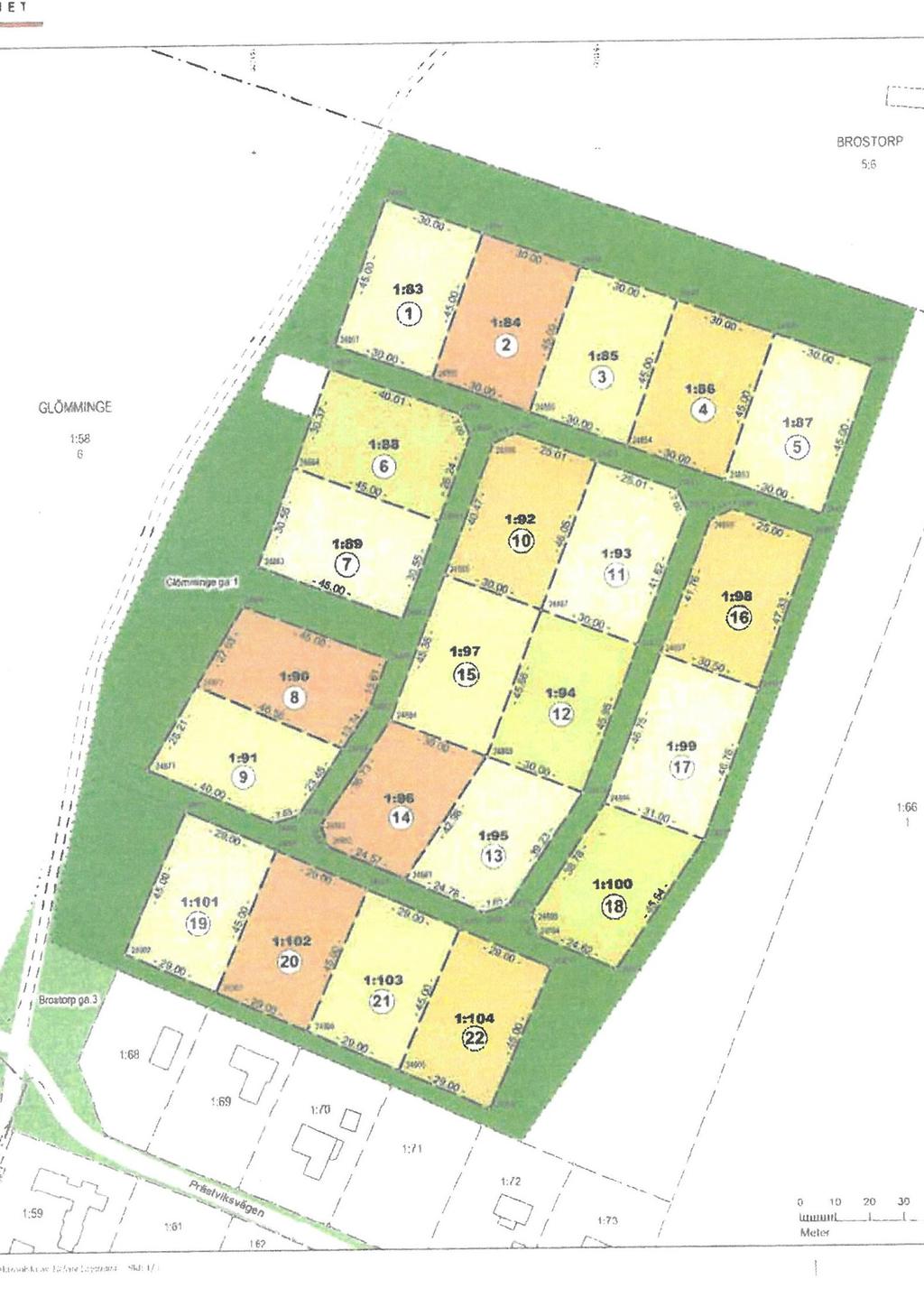
På promenadavstånd ifrån Prästvikens fantastiska badplats och cykelavstånd ifrån Saxnäs, Isgärde, Stora Rör och Glömminge finns det nu äntligen byggklara tomter till salu! Just nu finns det 7 av totalt 22 tomter kvar som är lediga i området, flera med fint läge!

Alla fastigheter är avstyckade och klara samt förberedda med Kommunalt V/A, EL och fiber i tomtgräns. Detaljplanen i kvarteret reglerar vad ni får uppföra för typ av byggnad, men generellt medger den en maximal byggnadsarea om 20% samt att byggnaden är i 1-plan med eller utan inredd vind samt har ett traditionellt sadeltak.

Valfriheten i kvarteret är mycket stor och ni bygger med precis den husleverantör ni tycker passar er. Det går även bra att göra det helt på egen hand. Vi kan tipsa och förmedla kontakt till de många skickliga hantverkare och leverantörer utav hus som är verksamma på Öland. På det sättet känner ni er trygga hela vägen vid ert nybygge!

Förutom närheten till naturen och havet runt omkring ligger dessa tomter på behagligt avstånd ifrån Ölandsbron och Kalmar City (ca 15min) samt grundskola (F-6) i Glömminge och förskola för barnen både i Saxnäs samt i Glömminge. Några andra pärlor som är extra uppskattade häromkring är Saxnäs GK, Rällaskogen och Jordtorpsåsens Naturreservat.

Välkommen att kontakta oss för en tomtvisning på plats i kvarteret!

Om Tomten

Sammanfattning

Typ: Tomt
Tomtarea: 1 365 m2
Utgångspris: 850 000 kr
Upplåtelseform: Äganderätt
Inflyttning: Enligt överenskommelse

Byggnadssätt

Vatten: Kommunalt vatten
Avlopp: Kommunalt avlopp
Byggrätt: Byggrätt: 1 plan utan källare, vind får inte inredas. Största byggnadsarea är 20% av tomtarean, dock maximalt 240 kvm, varav komplementbyggnad max 70 kvm. Se vidare Planbestämmelser.

Allmänt

Län: Kalmar
Kommun: Mörbylånga
Område: Öland Mellersta
Fastighetsbeteckning: MÖRBYLÅNGA GLÖMMINGE 1:97

Planbestämmelser

Detaljplan för del av glömminge 1:58, Detaljplan (Beslutsdatum: 2020-04-27, Registreringsdatum: 2020-06-01, Senast ändrad: 2020-12-21)

Övriga rättigheter och belastningar

Gemensamhetsanläggning: Mörbylånga Glömminge Ga:1

Ekonomi

Utgångspris

850 000 kr

Taxering

Mark: 204 000 kr
Totalt: 204 000 kr
Taxeringsår: 2021
Taxeringsvärdet är: Fastställt
Typkod: 210, Småhusenhet, tomtmark

Pantbrev

Det finns 0 pantbrev uttaget om sammanlagt 0 kr

Alla bilder

+ 11 Visa alla 17 bilder
 

Karta och område

Renfanans väg 4, Färjestaden

Kalkyl

Vad kostar nya boendet?

Ansvarig mäklare erbjuder dig som ska köpa bostad en skriftlig beräkning av dina personliga boendekostnader. Kontakta mäklaren om du önskar en boendekostnadskalkyl.

Intresseformulär

Fyll i formuläret så kontaktar vi dig inom kort.

Kontaktuppgifter
Vänligen ange förnamn
Vänligen ange efternamn
Vänligen ange telefonnummer
Vänligen ange e-post
500 tecken kvar
Har du lånelöfte?*
Vill du ha hjälp med lånelöfte?
Vill du få nyheter och erbjudanden?

Oj, något gick fel! Försök igen. 

Ett ögonblick!
Tack, dina uppgifter är sparade!
Du fyllde inte i någon e-postadress. Ange den nedan för att inte missa någon information.
 
 
 
Ta del av vår integritetspolicy
 
 
 

Liknande bostäder till salu

Öland Mellersta, Mörbylånga
Renfanans väg 4
Dela bostad: Dela på Facebook Dela med epost Dela med sms Kopiera länk Länken kopierad

Planritning