Hoppa till innehåll
Unnaryd

Ångbåtsvägen

Ångbåtsvägen vid sjön Unnen

  • Typ: Tomt
  • Upplåtelseform: Äganderätt

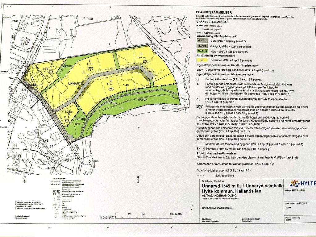
Tomter på bästa läge vid sjön Unnen för ditt nya drömboende. Här finns byggrätt på 220 kvm med en fantastisk sjöutsikt och badrocksavstånd till stranden. Ett unikt tillfälle att kunna bo vid stranden och ha möjlighet till utbudet av alla kultur-, natur-, och fritidsaktiviteter som erbjuds.

Pris: 450 kr/kvm + anslutningsavgifter mm.

Lediga tomter just nu:
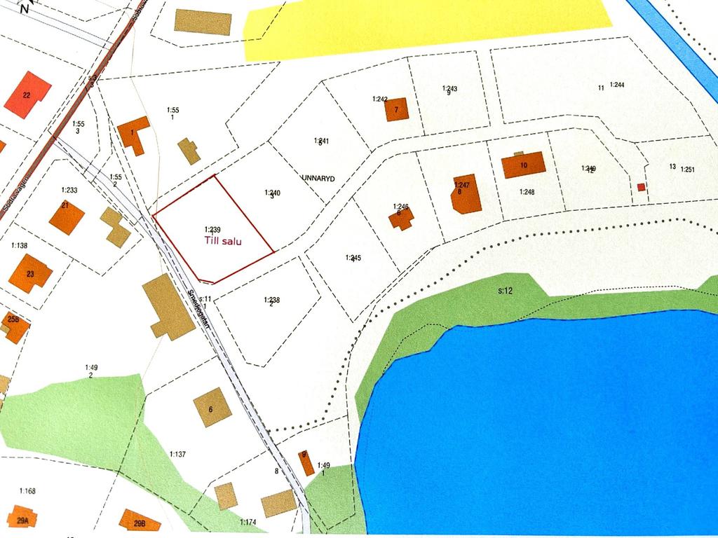
Ångbåtsvägen 1. (Hylte Unnaryd 1:239). Tomt: 1112 kvm. Pris: 500 400 kr.

I den sjörika östra delen av Hylte kommun har småländska Unnaryd, med sin vackra landsbygd, utvecklats till ett viktigt centrum för turism och entreprenörskap. I Unnaryd finns förskola, skola, fritidshem och bibliotek. För fritiden finns sporthall, fotbollsplaner, tennisbana, boulebana, gym och padelhall. Dessutom en stark hantverkstradition. Unnaryd kan även stoltsera med en egen badstrand mitt i samhället och en skidbacke. Idag bor cirka 800 personer i Unnaryd. (Läs gärna mer på www.unnaryd.com).

Sjön Unnen är känd för sina fina vatten och goda fiskemöjligheter. Här fiskar du både abborre, gös och gädda. Naturen upplever du som bäst när du glider fram på sjön. Kanske en tidig morgon när du provar fiskelyckan. Oavsett om du föredrar ett dopp, att ta dig runt med båt eller ströva i naturen. Här finns något för alla som gillar fridfull natur och ett rikt djurliv. Har du tur, så kan du även hitta blåbär och kantarell och kanske få syn på en älg eller fiskgjuse i skogarna kring Unnen. (Läs gärna mer på www.ifiske.se).

Om Tomten

Sammanfattning

Typ: Tomt
Utgångspris: 500 400 kr
Upplåtelseform: Äganderätt

Allmänt

Län: Halland
Kommun: Hylte
Fastighetsbeteckning: Hylte Unnaryd

Planbestämmelser

För del av unnaryd 1:49 m.fl.i unnaryd samhälle, Detaljplan (Beslutsdatum: 2017-10-19, Registreringsdatum: 2017-12-11, Senast ändrad: 2023-10-11)

Övrigt

Fast pris: 450 kr/kvm /exkl anslutningsavgifter & bygglovskostnader.

Ångbåtsvägen 1 (Unnaryd 1:239). Areal 1112 kvm. Taxeringsv (2024): 364 000 kr. Pris: 500 400 kr.

Ångbåtsvägen 3 (Unnaryd 1:240)- Areal: 1047 kvm. Taxeringsv (2024): 355 000 kr. Pris: 471 150 kr.

Ångbåtsvägen 5 (Unnaryd 1.241). Areal: 1082 kvm. Taxeringsv (2024): 361 000 kr. Pris: 486 900 kr.


Anslutningsavgifter (sept 2024):
V/A: 89.339 kr
El: 16-25 amp: 50.000 kr
Fiber: ca 30.000 kr.

Bygglovskostnader (sept 2024):
Bygglov: 28.990 kr
Nybyggnadskarta: 8.640 kr
Utsättning: 6.480 kr (4 hörn)
Lägeskontroll: 3.240 kr.

Fastighetsskatt/år (tomt): 1% av taxeringsvärdet.

Ekonomi

Utgångspris

500 400 kr

Taxering

Typkod: 210, Småhusenhet, tomtmark

Pantbrev

Det finns 0 pantbrev uttaget om sammanlagt 0 kr

Alla bilder

+ 2 Visa alla 8 bilder
 

Karta och område

Ångbåtsvägen, Unnaryd

Kalkyl

Vad kostar nya boendet?

Ansvarig mäklare erbjuder dig som ska köpa bostad en skriftlig beräkning av dina personliga boendekostnader. Kontakta mäklaren om du önskar en boendekostnadskalkyl.

Intresseformulär

Fyll i formuläret så kontaktar vi dig inom kort.

Kontaktuppgifter
Vänligen ange förnamn
Vänligen ange efternamn
Vänligen ange telefonnummer
Vänligen ange e-post
500 tecken kvar
Har du lånelöfte?*
Vill du ha hjälp med lånelöfte?
Vill du få nyheter och erbjudanden?

Oj, något gick fel! Försök igen. 

Ett ögonblick!
Tack, dina uppgifter är sparade!
Du fyllde inte i någon e-postadress. Ange den nedan för att inte missa någon information.
 
 
 
Ta del av vår integritetspolicy
 
 
 

Liknande bostäder till salu

Hylte
Ångbåtsvägen
Dela bostad: Dela på Facebook Dela med epost Dela med sms Kopiera länk Länken kopierad

Planritning