Hoppa till innehåll
Falun

Musseronvägen/Stensoppsvägen

  • Typ: Tomt
  • Upplåtelseform: Äganderätt

TALLSKOGEN 2 I ÖVRE GRUVRISET!

Välkommen till Tallskogen 2 i Övre Gruvriset – ett attraktivt och barnvänligt tomtområde där det naturnära lugnet möter stadens närhet.

Här bor du med vidsträckt utsikt och direkt anslutning till skog och mark, samtidigt som Faluns centrum nås på cirka 3,5 km och Borlänge enkelt via motorvägen.

I närområdet finns sjön Vällan med badplats, förskola och skola F1–9, Tallens affärscentrum samt goda möjligheter till friluftsliv med golfbana, skidspår och slalombacke.

Området präglas även av en stark gemenskap med återkommande aktiviteter för både stora och små, såsom midsommarfirande och tomtevandring.

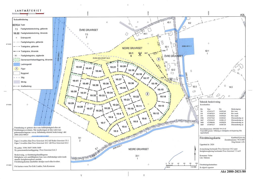
Totalt släpps 42 byggklara tomter, perfekt för dig som vill förverkliga drömmen om ett nybyggt hem i ett modernt och tryggt bostadsområde.

Antal tomter: 42 st
Pris 1 295 000 kr - 1 895 000 kr
Anslutningsavgifter för vatten, avlopp, el, fiber och fjärrvärme tillkommer

Ta chansen att förvärva en tomt i ett av Faluns mest spännande nya bostadsområden.
Anmäl ert intresse snarast och ange vilken tomt ni önskar köpa.

Kontakta fastighetsmäklare

Joakim Folkesson
070-279 80 12
joakim.folkesson@svenskfast.se

Vi erbjuder hus från Myresjöhus till tomterna till mycket förmånliga villkor. Valet är helt ert – ni kan också även köpa enbart tomt.

Kontakta Roger Albinsson
📞 070-567 70 00
✉️roger.albinsson@myresjohus.se

Om Tomten

Sammanfattning

Typ: Tomt
Utgångspris: 1 295 000 kr
Upplåtelseform: Äganderätt

Allmänt

Län: Dalarna
Kommun: Falun
Område: Övre Gruvriset

Ekonomi

Utgångspris

1 295 000 kr

Taxering

Typkod: 210, Småhusenhet, tomtmark

Pantbrev

Det finns 0 pantbrev uttaget om sammanlagt 0 kr

Alla bilder

+ 2 Visa alla 8 bilder
 

Karta och område

Musseronvägen/Stensoppsvägen, Falun

Kalkyl

Vad kostar nya boendet?

Ansvarig mäklare erbjuder dig som ska köpa bostad en skriftlig beräkning av dina personliga boendekostnader. Kontakta mäklaren om du önskar en boendekostnadskalkyl.

Intresseformulär

Fyll i formuläret så kontaktar vi dig inom kort.

Kontaktuppgifter
Vänligen ange förnamn
Vänligen ange efternamn
Vänligen ange telefonnummer
Vänligen ange e-post
500 tecken kvar
Har du lånelöfte?*
Vill du ha hjälp med lånelöfte?
Vill du få nyheter och erbjudanden?

Oj, något gick fel! Försök igen. 

Ett ögonblick!
Tack, dina uppgifter är sparade!
Du fyllde inte i någon e-postadress. Ange den nedan för att inte missa någon information.
 
 
 
Ta del av vår integritetspolicy
 
 
 

Liknande bostäder till salu

Övre Gruvriset, Falun
Musseronvägen/Stensoppsvägen
Dela bostad: Dela på Facebook Dela med epost Dela med sms Kopiera länk Länken kopierad

Planritning