 
                
                            Såld 26 okt 2025
                        
                    
                                        Slutpris
                                    
                                        
                                            8 300 000 kr
                                        
                                Arons gata 16. Utsikt, båtplats, toppskick och solläge. Det här får ni inte missa.
Lediga tider:
                                                mån 3/11 och tor 6/11
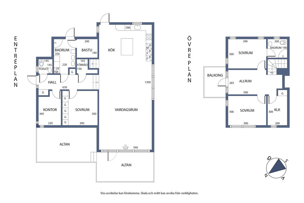
                                            Planritning
 
                                
                                            Planritning, 
                                            Viss avvikelse kan förekomma. Skala och mått kan avvika från verkligheten.
                                        
Karta och område
Arons gata 16, Hunnebostrand
Trygg affär - Varudeklarerad Villa
                                            
                                                Marknadens mest omfattande paket för besiktning och försäkring ger trygghet i 10 år*.
*Enligt marknadsbevakning 2025-04-02
                                                    Läs mer här
                                            
                                    