 
                
                            Såld 15 jul 2025
                        
                    
                                        Slutpris
                                    
                                        
                                            7 175 000 kr
                                        
                                Fiskebäck- Friliggande villa med stor plan tomt
Lediga tider:
                                                mån 3/11 och tis 4/11
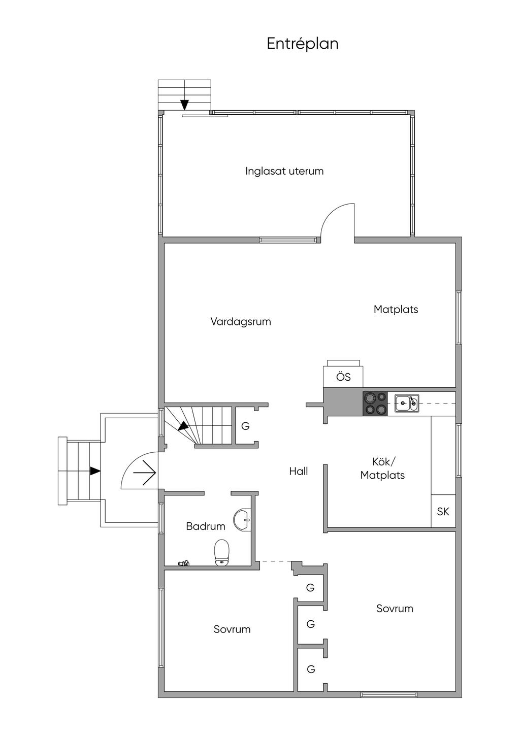
                                            Planritning
Karta och område
Källängsgatan 33, Västra Frölunda
Trygg affär - Varudeklarerad Villa
                                            
                                                Marknadens mest omfattande paket för besiktning och försäkring ger trygghet i 10 år*.
*Enligt marknadsbevakning 2025-04-02
                                                    Läs mer här
                                            
                                     
                                         
                                