
Såld 18 jul 2024
Slutpris
2 410 000 kr
Fin tvåplansvilla med garage och högt och fint läge i Gånghester!
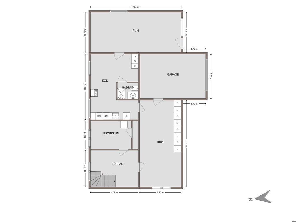
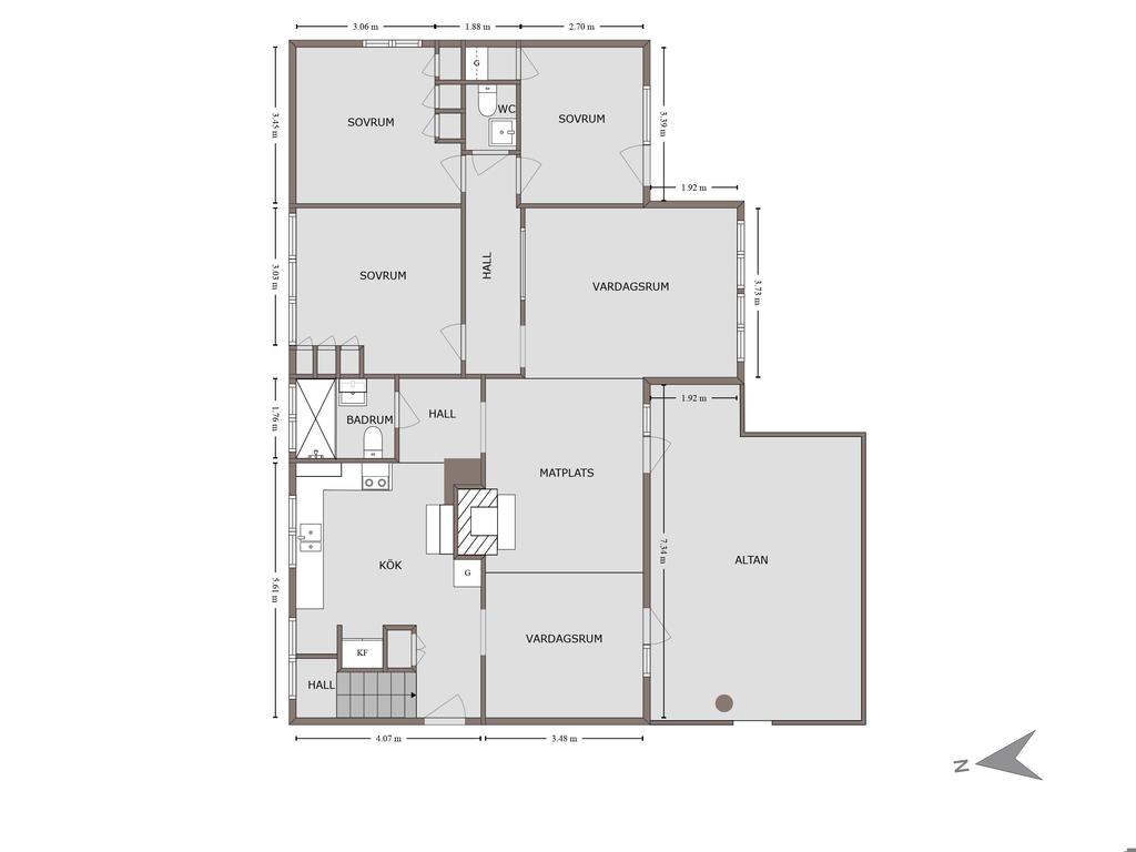
Planritning
Karta och område
Stora vägen 41, Gånghester
Trygg affär - Varudeklarerad Villa
Marknadens mest omfattande paket för besiktning och försäkring ger trygghet i 10 år*.
*Enligt marknadsbevakning 2025-04-02
Läs mer här