Hoppa till innehåll
Såld 05 dec 2025
 
Slutpris
1 650 000 kr

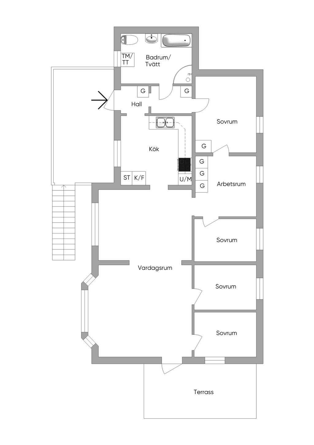
Ranneberg 300, Älvängen

  • Typ: Villa, 1 Plans villa
  • Rum: 6, varav 4-5 sovrum
  • Boarea: ca 100 m2
  • Tomtarea: 4 287 m2
  • Byggnadsår: 1954
  • Driftkostnad: 32 062 kr/år
  • Upplåtelseform: Äganderätt

Planritning

Karta och område

Ranneberg 300, Älvängen

Trygg affär - Varudeklarerad Villa
 
Steg 1/3 - Bostadsuppgifter
Steg 2/3 - Välj tid för mötet
Steg 3/3 - Kontaktuppgifter
Steg 4/4 - Slutför bokning
Steg 3/3 - Kontaktuppgifter

Boka tid med en mäklare för värdering

1. Fyll i dina bostadsuppgifter
2. Välj tid och mäklare i kalendern
3. Mäklaren ringer innan besöket

Boka tid med en mäklare som passar dig och din bostad

Så här går det till
1. Fyll i dina bostadsuppgifter
2. Välj tid och mäklare i kalendern
3. Mäklaren ringer innan besöket
Vi ringer dig för att boka en tid
Vi hittade inga lediga tider just nu. Fyll i dina kontaktuppgifter nedan så ringer vi upp för att boka in en passande tid.
Vi ringer dig för att en boka tid
Vi hittade inga lediga tider. Men det är inga problem, vi ringer upp för att hitta en passande tid.
Fyll i dina kontaktuppgifter
Dubbelkolla att uppgifterna stämmer så att mäklaren kan nå dig innan mötet.
Fyll i dina kontaktuppgifter
Vänligen fyll i dina uppgifter nedan så ringer vi upp dig för att boka en tid.
Mäklare:
Tid:

Hur kontaktar vi dig?

Oj, något gick fel. Försök gärna igen. 

En muntlig värdering är oftast gratis, men om du bor långt bort från vårt kontor kan en mindre avgift tillkomma. I så fall stämmer mäklaren av det med dig innan.

Vi tar en avgift för en skriftlig värdering för exempelvis bolån. Prata med din mäklare för att få ytterligare information om detta.

Du förbinder dig inte till någonting när du bokar en tid.

Hämtar tider...
Ett ögonblick!
Tack, dina uppgifter är sparade!
Lägg till gärna till epost för att inte missa något.

Liknande sålda bostäder

Liknande bostäder till salu

Lediga tider: fre 24/4 och mån 27/4