Hoppa till innehåll
Modern och stilfull villa på attraktiva Malmönvägen!
Såld 19 apr 2024
Slutpris
2 395 000 kr

Malmönvägen 89, Köping

Sjönära villa med öppen planlösning, renoverad i modern tid. Belägen på attraktiva Malmön!

  • Typ: Villa, Villa, 1½-plan
  • Rum: 4, varav 2-3 sovrum
  • Boarea: 61 m2
  • Biarea: 45 m2
  • Tomtarea: 1 314 m2
  • Byggnadsår: 1998
  • Driftkostnad: 57 670 kr/år
  • Upplåtelseform: Äganderätt

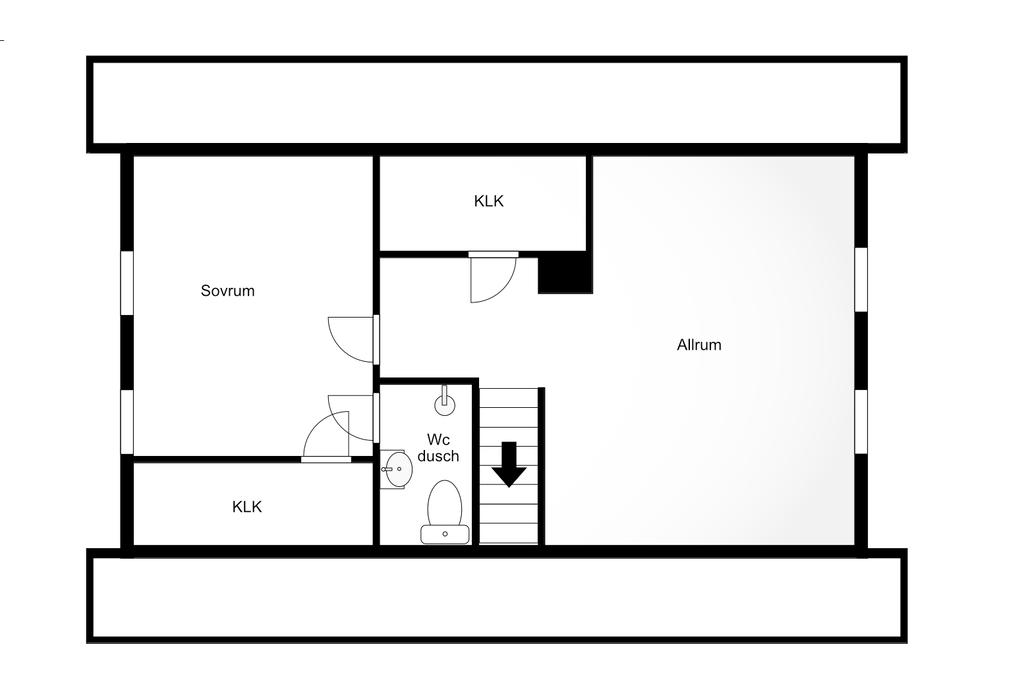
Planritning

Karta och område

Malmönvägen 89, Köping

Trygg affär - Varudeklarerad Villa

Omdömen från kunder i Köping

2025-12-04
Vi blev bemötta på ett proffesionellt och varmt sätt av vår mäklare Ann-Sofie. Det var tydligt att hon satte oss och våra tankar, funderingar och ambitioner i centrum och ingav ett stort förtroende. Vi hade förväntningar att vår...
Isabella D
2025-11-10
Ett stort tack till Svensk Fastighetsförmedling för ett mycket professionellt och engagerat arbete genom hela försäljningen 🙌 Vi uppskattar er trygghet, tydlighet och värme. Riktigt fint samarbete 🙂
Dijana R
2025-11-04
Vi blev otroligt fint bemötta av mäklaren från första kontakt till avslutad affär. Allt kändes tryggt, tydligt och professionellt genom hela processen. Våra förväntningar var höga, men de överträffades, kommunikationen var snabb, ...
Milad S
2025-11-04
Seriösa, pålitliga, bra på återkoppling och riktigt trevliga.
Mats F
2025-10-26
Väldigt proffsiga mäklare med ett strålande engagemang
Richard J
2025-10-26
Topp service från början till slut, kan inte vara mer nöjd än jag är. Rekommenderar verkligen Sanna och Svensk fastighetsförmedling och om jag någonsin flyttar igen är hon självklara valet.
Mia W
2025-10-11
Väldigt bra och kunnig mäklare som svarade på alla våra frågor och var mån om att ringa tillbaka om vi inte hade fått tag på henne
Fanny L
2025-10-08
Superproffsig från början till slut!
Johanna J
2025-09-09
Sanna var superproffsig, lätt att prata och bolla med
Niklas F
 
Steg 1/4 - Bostadsuppgifter
Steg 2/4 - Välj tid för mötet
Steg 3/4 - Kontaktuppgifter
Steg 4/4 - Slutför bokning
Steg 3/3 - Kontaktuppgifter

Boka tid med en mäklare för värdering

1. Fyll i dina bostadsuppgifter
2. Välj tid och mäklare i kalendern
3. Mäklaren ringer innan besöket

Boka tid med en mäklare som passar dig och din bostad

Så här går det till
1. Fyll i dina bostadsuppgifter
2. Välj tid och mäklare i kalendern
3. Mäklaren ringer innan besöket
Vi ringer dig för att boka en tid
Vi hittade inga lediga tider just nu. Fyll i dina kontaktuppgifter nedan så ringer vi upp för att boka in en passande tid.
Vi ringer dig för att en boka tid
Vi hittade inga lediga tider. Men det är inga problem, vi ringer upp för att hitta en passande tid.
Fyll i dina kontaktuppgifter
Vi behöver dem för att kunna kontakta dig inför mötet.
Fyll i dina kontaktuppgifter
Vänligen fyll i dina uppgifter nedan så ringer vi upp dig för att boka en tid.
Mäklare:
Tid:

Hur kontaktar vi dig?

Oj, något gick fel. Försök gärna igen. 

En muntlig värdering är oftast gratis, men om du bor långt bort från vårt kontor kan en mindre avgift tillkomma. I så fall stämmer mäklaren av det med dig innan.

Vi tar en avgift för en skriftlig värdering för exempelvis bolån. Prata med din mäklare för att få ytterligare information om detta.

Du förbinder dig inte till någonting när du bokar en tid.

Hämtar tider...
Ett ögonblick!
Tack, dina uppgifter är sparade!
Ditt möte är bokat!
Mäklare:
Datum:
Tid:
kl.
Adress:
Lägg till gärna till epost för att inte missa något.

Liknande sålda bostäder

Liknande bostäder till salu