
Såld 08 mar 2024
Slutpris
4 500 000 kr
Alunda - Solgläntan Klev 233
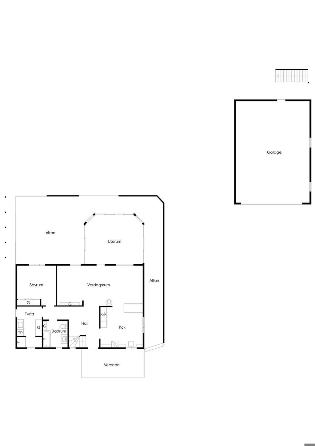
Planritning
Karta och område
Klev Solgläntan 233, Alunda
Trygg affär - Varudeklarerad Villa
Marknadens mest omfattande paket för besiktning och försäkring ger trygghet i 10 år*.
*Enligt marknadsbevakning 2025-04-02
Läs mer här