
Såld 21 nov 2024
Lediga tider:
fre 24/10 och mån 27/10
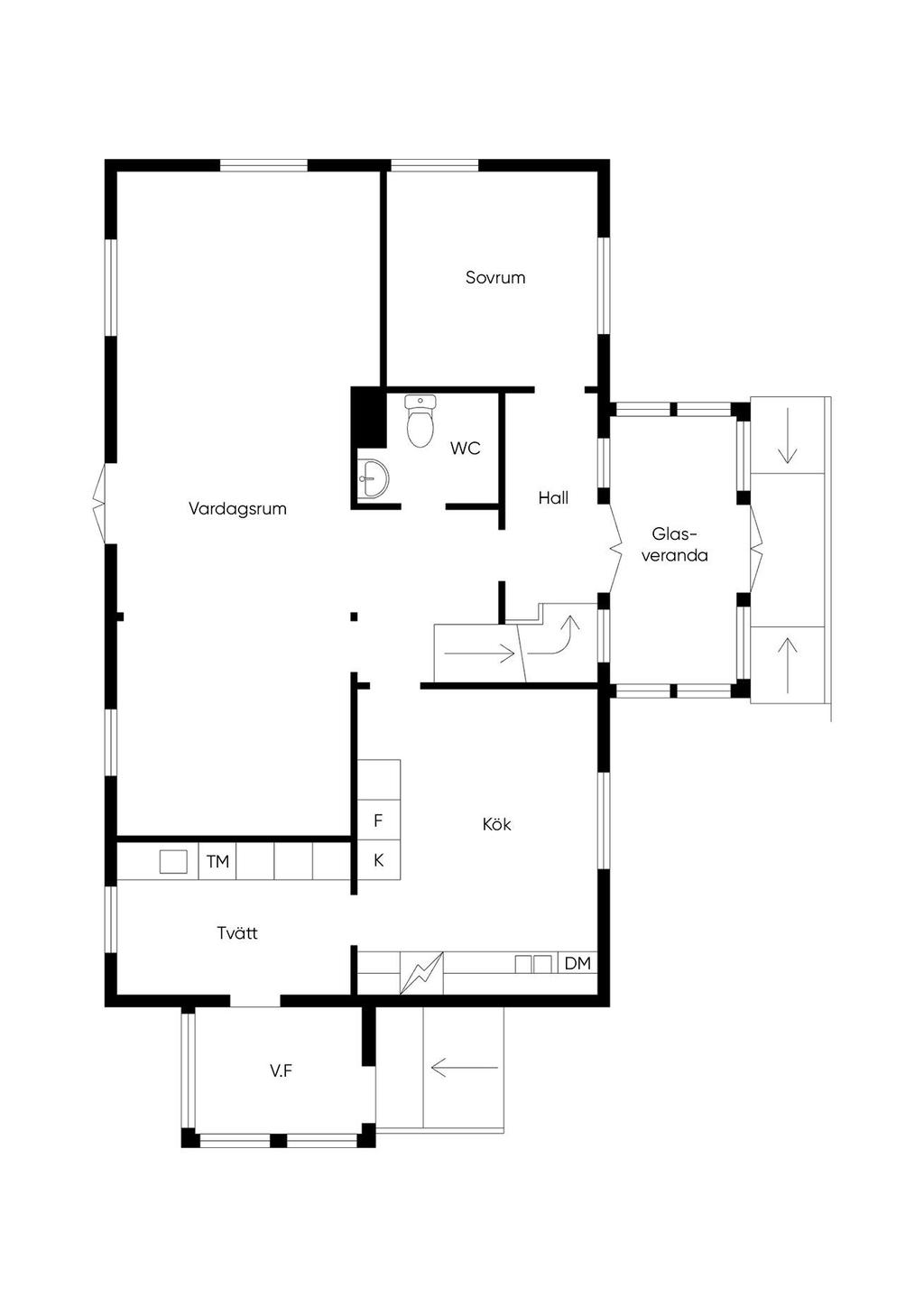
Planritning
Karta och område
Gunnebovägen 48, Rönninge
Trygg affär - Varudeklarerad Villa
Marknadens mest omfattande paket för besiktning och försäkring ger trygghet i 10 år*.
*Enligt marknadsbevakning 2025-04-02
Läs mer här