
Såld 11 apr 2025
Slutpris
7 700 000 kr
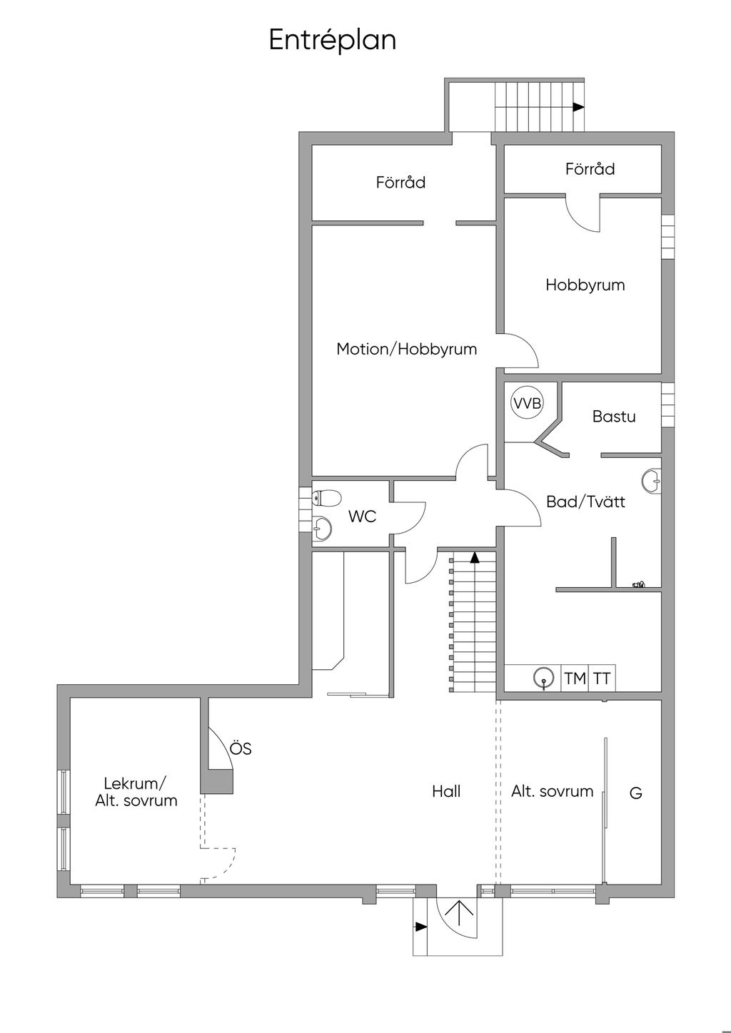
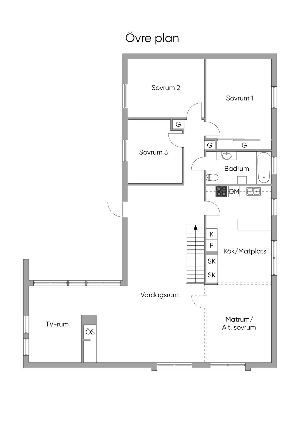
Stor familjevilla i härligt läge!
Lediga tider:
tis 21/10 och ons 22/10