
Såld 24 okt 2023
Slutpris
4 700 000 kr
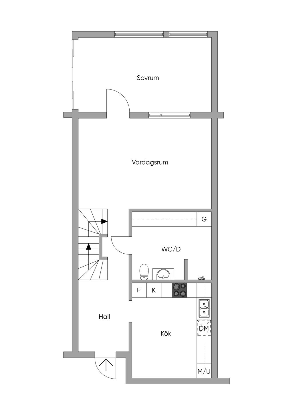
Unikt gavelradhus med insynsskyddad hörntomt
Lediga tider:
tis 21/10 och ons 22/10