
Såld 22 mar 2024
Slutpris
6 095 000 kr
Stor och ljus villa i bra soligt läge i omtyckta vretarna!
Kontakta ansvarig bobutik
Botkyrka/Salem
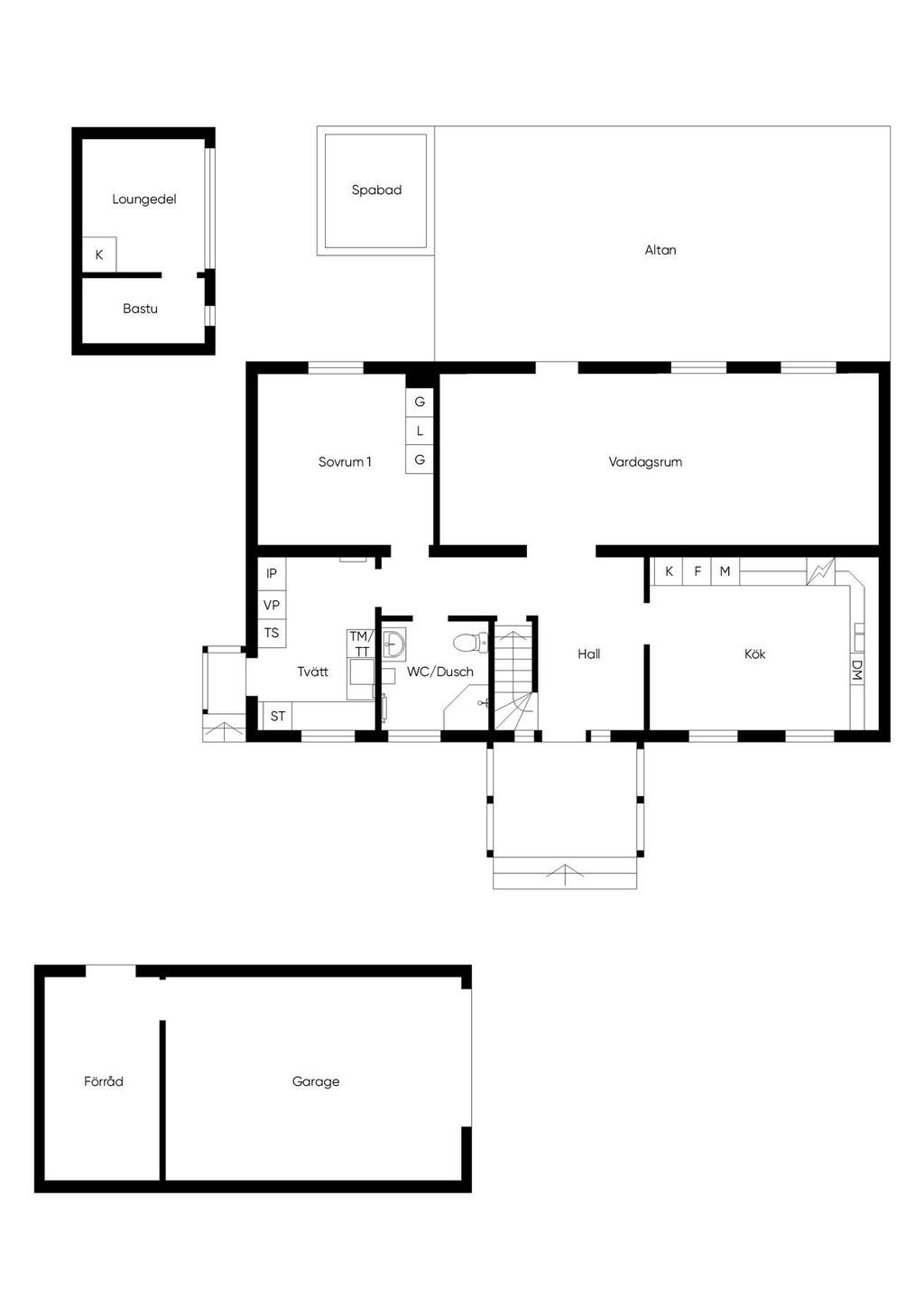
Planritning
Karta och område
Vreta gårds väg 60, Tumba
Trygg affär - Varudeklarerad Villa
Marknadens mest omfattande paket för besiktning och försäkring ger trygghet i 10 år*.
*Enligt marknadsbevakning 2025-04-02
Läs mer här