
Såld 12 nov 2024
Slutpris
3 950 000 kr
Totalrenoverat parhus på Rådjursvägen 143!
Lediga tider:
fre 17/10 och mån 20/10
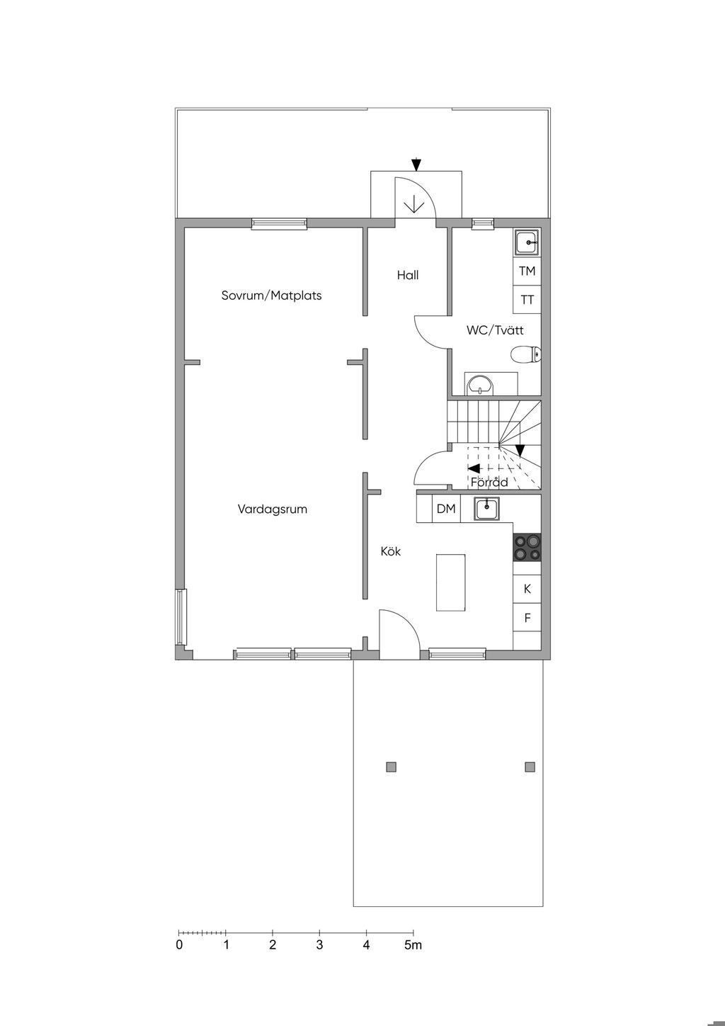
Planritning
Karta och område
Rådjursvägen 143, Tumba
Trygg affär - Varudeklarerad Villa
Marknadens mest omfattande paket för besiktning och försäkring ger trygghet i 10 år*.
*Enligt marknadsbevakning 2025-04-02
Läs mer här