Hoppa till innehåll
Såld 05 sep 2025
Slutpris
3 795 000 kr

Nattviolvägen 43, Löddeköpinge

  • Typ: Villa, 1 ½ plan
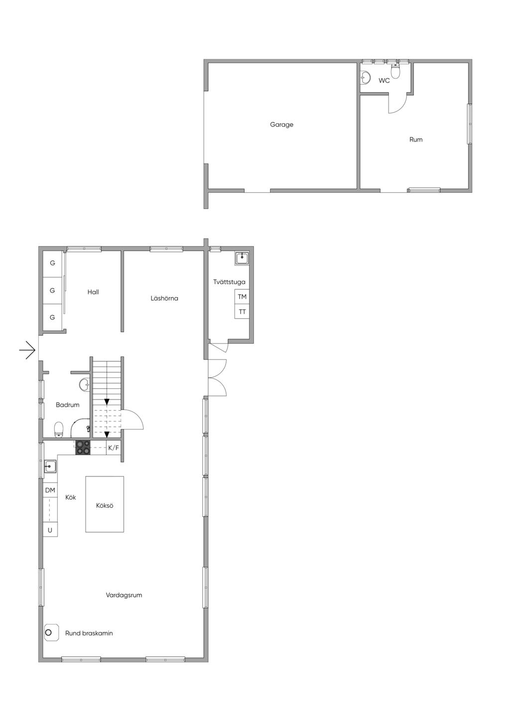
  • Rum: 3, varav 2 sovrum
  • Boarea: 92 m2
  • Tomtarea: 1 325 m2
  • Byggnadsår: 1969
  • Driftkostnad: 37 765 kr/år
  • Upplåtelseform: Äganderätt

Planritning

Karta och område

Nattviolvägen 43, Löddeköpinge

Trygg affär - Varudeklarerad Villa

Omdömen från kunder i Lund

2026-01-09
Vi fick omedelbart ett stort förtroende för Elias. Han var mycket engagerad, hjälpte oss långt utöver vad man kan förvänta sig och var alltid lyhörd för våra önskemål kring försäljningen.
Sofie W
2025-12-29
Gustav satte igång förberedelser för försäljningen omedelbart efter vårt inledande möte. Våra grannar tittade på lägenheten och de var intresserade. Gustav förde samtal med dem och förhandlade fram ett pris som vi kunde acceptera....
Irene R
2025-12-23
Gustav möjliggjorde en snabb och smidig bostadsaffär där både vi som köpare och säljarna blev väldigt nöjda. Tydlig kommunikation och ett genuint trevligt bemötande.
Andreas V
2025-12-10
Gustav Wenning gjorde mig mycket trygg i mitt första lägenhetsköp någonsin. Han hade humor från första mötet och var alltid härlig att prata med. Rekommenderas starkt!
Markus P
2025-12-05
Saklig och effektiv mäklare som dessutom var naturligt trevlig.
Roland R
2025-12-03
Bemötandet var fantastiskt trevligt, kände mig trygg. Mina förväntningar blev uppfyllda, då jag inte har ngn erfarenhet av försäljning sedan tidigare. Min mäklare Gustav Wenning levde verkligen upp till mina förväntningar och kan ...
Anette D
2025-11-29
Gustav har från början haft en väldigt professionell inställning till denna försäljning. Han redogjorde för marknaden såg ut då och han trodde om en eventuell försäljning. Han var också mycket mån om att ta reda på priser i område...
Jacob L
2025-11-27
Effektiv, förtroendeingivande och vänlig framtoning. Uppskattas!
Hanna-Olivia K
2025-11-27
En mycket trevlig och lugn person. Trevligt bemötande och alltid glad
Therése Å
 
Steg 1/3 - Bostadsuppgifter
Steg 2/3 - Välj tid för mötet
Steg 3/3 - Kontaktuppgifter
Steg 4/4 - Slutför bokning
Steg 3/3 - Kontaktuppgifter

Boka tid med en mäklare för värdering

1. Fyll i dina bostadsuppgifter
2. Välj tid och mäklare i kalendern
3. Mäklaren ringer innan besöket

Boka tid med en mäklare som passar dig och din bostad

Så här går det till
1. Fyll i dina bostadsuppgifter
2. Välj tid och mäklare i kalendern
3. Mäklaren ringer innan besöket
Vi ringer dig för att boka en tid
Vi hittade inga lediga tider just nu. Fyll i dina kontaktuppgifter nedan så ringer vi upp för att boka in en passande tid.
Vi ringer dig för att en boka tid
Vi hittade inga lediga tider. Men det är inga problem, vi ringer upp för att hitta en passande tid.
Fyll i dina kontaktuppgifter
Dubbelkolla att uppgifterna stämmer så att mäklaren kan nå dig innan mötet.
Fyll i dina kontaktuppgifter
Vänligen fyll i dina uppgifter nedan så ringer vi upp dig för att boka en tid.
Mäklare:
Tid:

Hur kontaktar vi dig?

Oj, något gick fel. Försök gärna igen. 

En muntlig värdering är oftast gratis, men om du bor långt bort från vårt kontor kan en mindre avgift tillkomma. I så fall stämmer mäklaren av det med dig innan.

Vi tar en avgift för en skriftlig värdering för exempelvis bolån. Prata med din mäklare för att få ytterligare information om detta.

Du förbinder dig inte till någonting när du bokar en tid.

Hämtar tider...
Ett ögonblick!
Tack, dina uppgifter är sparade!
Lägg till gärna till epost för att inte missa något.

Liknande sålda bostäder

Liknande bostäder till salu