
Såld 30 jan 2024
Slutpris
3 650 000 kr
Familjevilla på hörnläge i populärt område!
Lediga tider:
fre 17/10 och mån 20/10
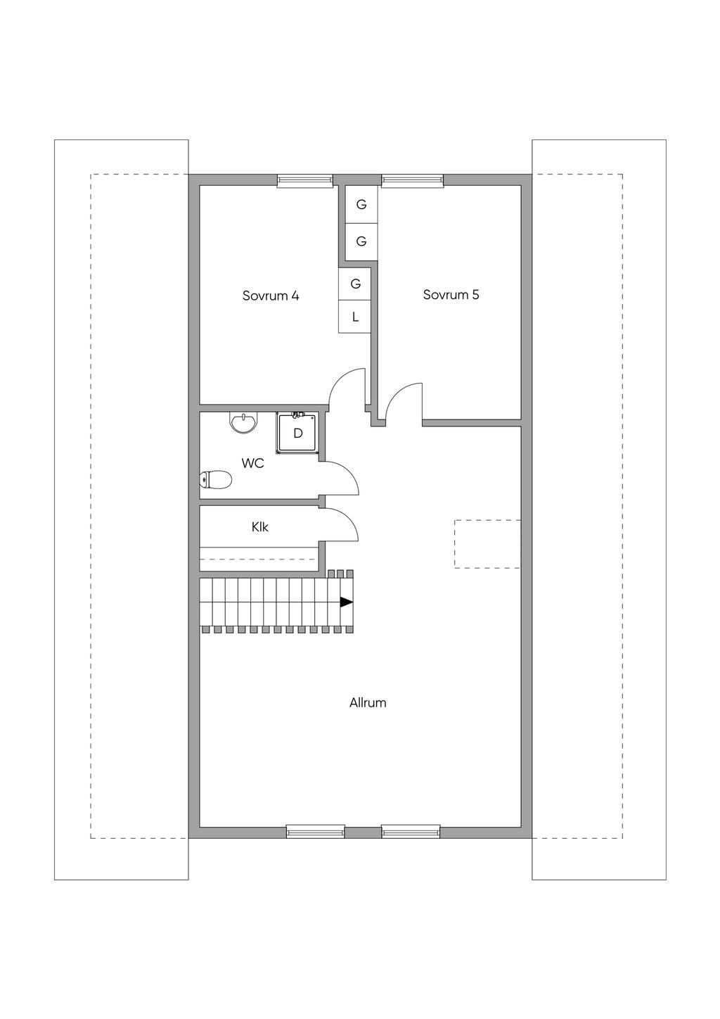
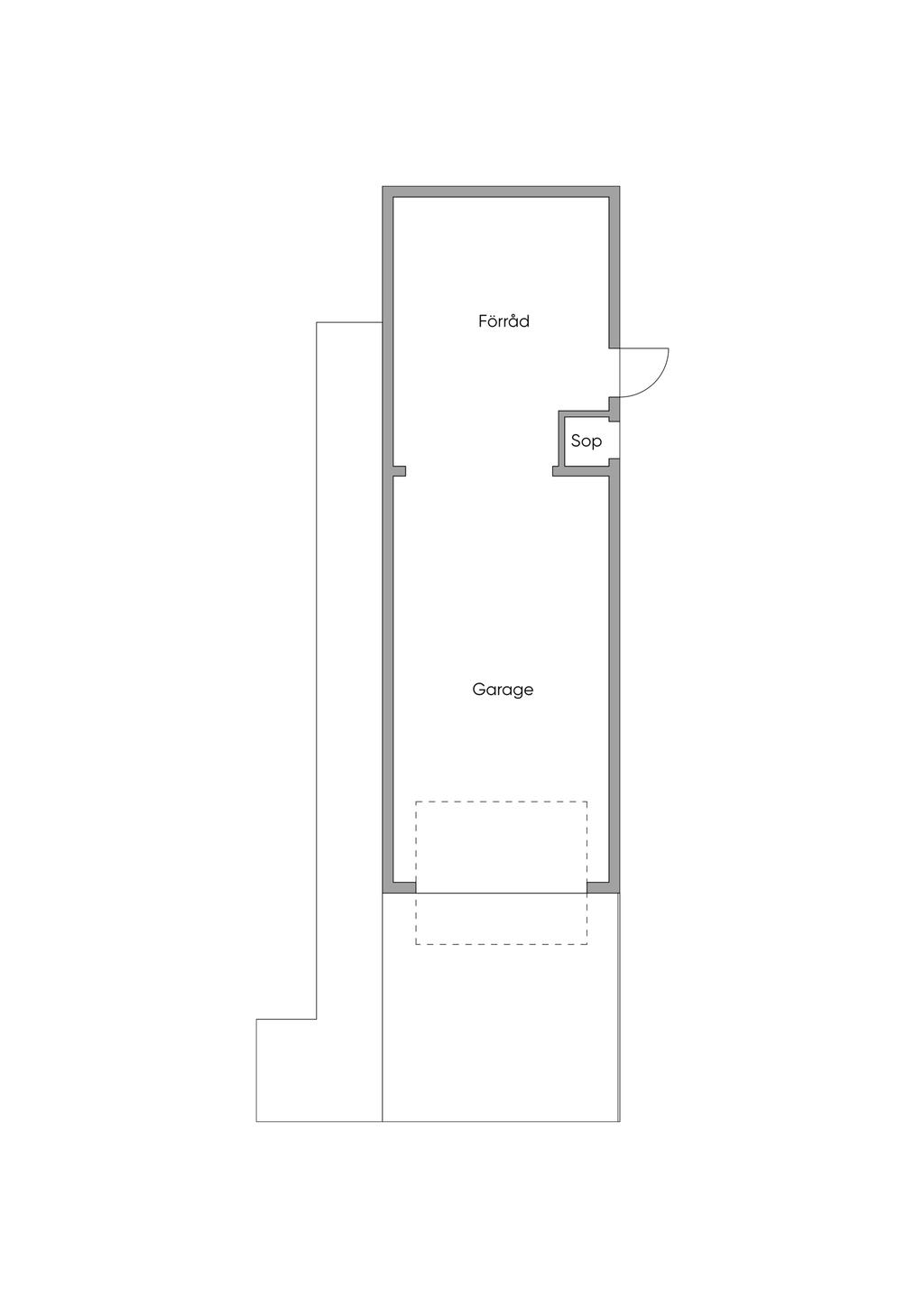
Planritning
Karta och område
Släggvägen 19, Åkarp
Trygg affär - Varudeklarerad Villa
Marknadens mest omfattande paket för besiktning och försäkring ger trygghet i 10 år*.
*Enligt marknadsbevakning 2025-04-02
Läs mer här