
Såld 28 maj 2025
Slutpris
6 900 000 kr
Stilrent 3-plans parhus i populära och barnvänliga Tölö
Lediga tider:
mån 20/10 och tis 21/10
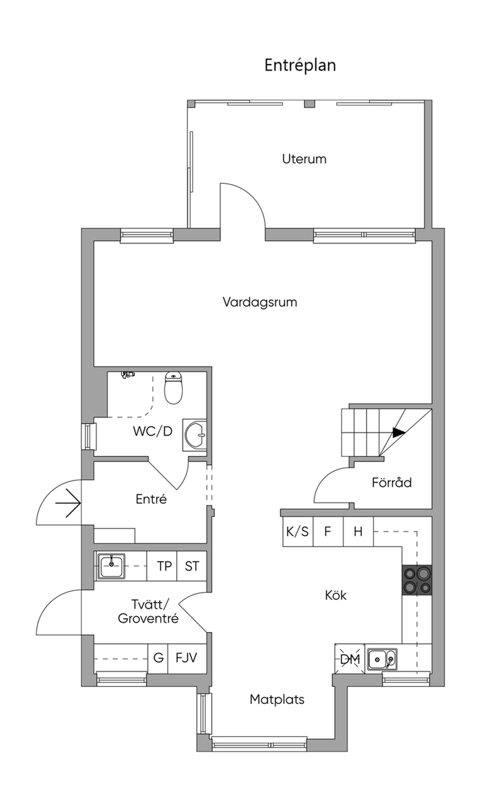
Planritning
Karta och område
Aroniavägen 64, Kungsbacka
Trygg affär - Varudeklarerad Villa
Marknadens mest omfattande paket för besiktning och försäkring ger trygghet i 10 år*.
*Enligt marknadsbevakning 2025-04-02
Läs mer här