
Såld 16 mar 2024
Slutpris
13 000 000 kr
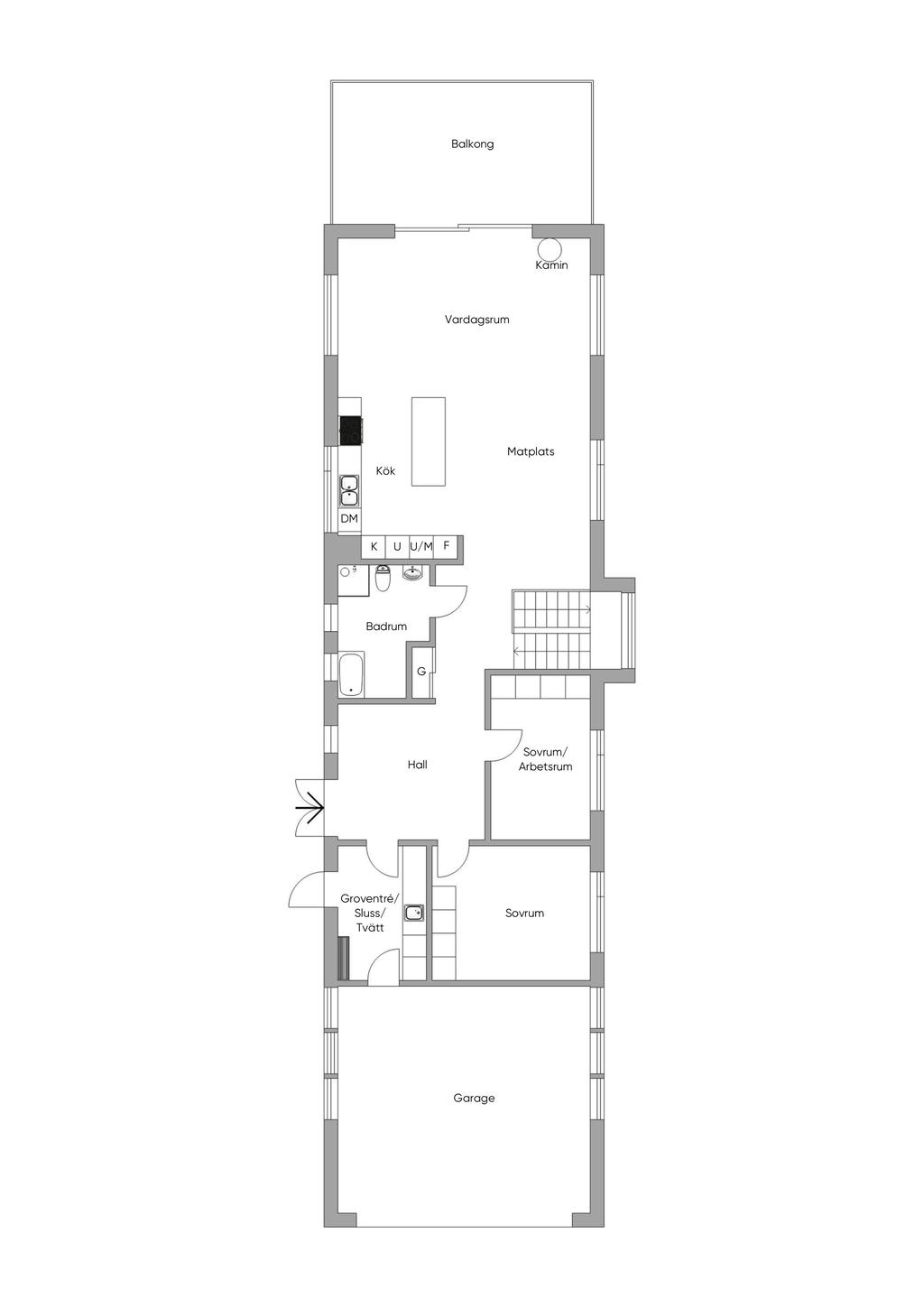
Exklusiv & påkostad villa - helt nybyggd!
Lediga tider:
ons 22/10 och tor 23/10